Εξερευνήστε τα τέλεια αρχιτεκτονικα σχεδια σπιτιων 120τμ Ο σχεδιασμός κατοικίας σε μια έκταση 120 τετραγωνικών μέτρων μπορεί να είναι μια απαιτητική και ταυτόχρονα ικανοποιητική εργασία. Το κλειδί είναι να δημιουργήσετε έναν λειτουργικό και αισθητικά ευχάριστο χώρο που να καλύπτει τις ανάγκες των κατοίκων του.
Μια ιδέα σχεδια σπιτιων 120τμ μπορεί να φαίνεται στην Ελλάδα, το οποίο περιλαμβάνει σαλόνι, κουζίνα + τραπεζαρία, κυρίως υπνοδωμάτιο (με ιδιωτικό μπάνιο), υπνοδωμάτια 2 έως 4, υπνοδωμάτιο 3/γραφείο, μπάνια 1 έως 2, αποθήκη/βοηθητικό δωμάτιο και διαδρόμους/εισόδους. Αυτή η διαρρύθμιση είναι ευέλικτη και μπορεί να προσαρμοστεί ώστε να ταιριάζει στον τρόπο ζωής και την τοποθεσία σας.
Μια κάτοψη είναι ένα εργαλείο κατασκευής που συνδυάζει φυσικά χαρακτηριστικά όπως δωμάτια και χώρους με οντότητες όπως έπιπλα με τη μορφή σχεδίων υπό κλίμακα. Με λίγα λόγια, είναι μια αρχιτεκτονική απεικόνιση ενός κτιρίου.
αρχιτεκτονικα σχεδια σπιτιων 120τμ: τέλεια σχέδια ορόφων

Ελλάδα είναι γνωστή για τα όμορφα τοπία της, τον ηλιόλουστο καιρό και την πλούσια ιστορία της. Είναι επίσης ένα μέρος όπου πολλοί άνθρωποι ονειρεύονται να χτίσουν ένα σπίτι για να απολαύσουν τον μεσογειακό τρόπο ζωής. Ένα από τα πιο δημοφιλή μεγέθη σπιτιών στην Ελλάδα είναι τα 120τμ Αποτελεί την τέλεια ισορροπία μεταξύ χώρου και προϋπολογισμού.
αρχιτεκτονικά σχέδια σπιτιών 120τμ έχουν σχεδιαστεί για να μεγιστοποιούν τον χώρο, την άνεση και τη λειτουργικότητα. Συχνά διαθέτουν ανοιχτούς χώρους διαβίωσης, 2 έως 4 υπνοδωμάτια, έξυπνη αποθήκευση και εξωτερικούς χώρους όπως μπαλκόνια ή κήπους, καθιστώντας τα ιδανικά για σύγχρονη διαβίωση σε ένα μικρό μέγεθος.
Συμπεριλάβετε Σχεδια Σπιτιων 120τμ
Ακολουθεί μια απλή ιδέα για το πώς θα μπορούσε να μοιάζει ένα σχεδια σπιτιων 120 τμ στην Ελλάδα:
- Σαλόνι: 25τμ
- Κουζίνα + Τραπεζαρία: 20τμ
- Κύριο Υπνοδωμάτιο (με ιδιωτικό μπάνιο): 20τμ
- Υπνοδωμάτια 2 έως 4: 15τμ
- Υπνοδωμάτιο 3/Γραφείο: 12τμ
- Μπάνια 1 έως 2: 8τμ
- Αποθήκη/Βοηθητικό Δωμάτιο: 5τμ
- Διάδρομοι/Είσοδοι: 15τμ
- Διαβάστε περισσότερα: σχεδια σπιτιων 50τμ με σοφιτα
Αυτή η διαρρύθμιση είναι ευέλικτη και μπορεί να προσαρμοστεί ώστε να ταιριάζει με τον τρόπο ζωής και την τοποθεσία σας.
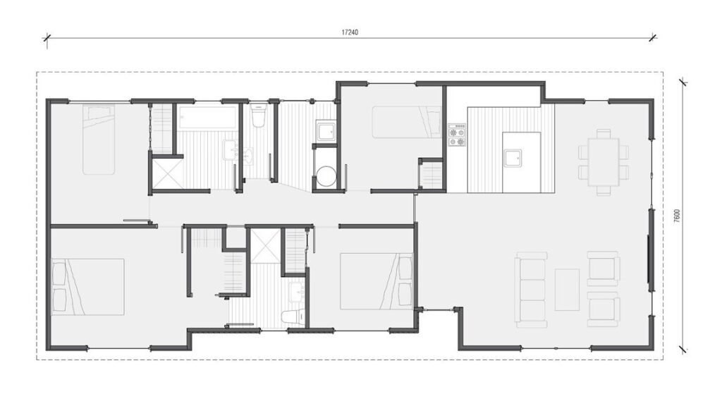
1. Αρχιτεκτονικό σχέδιο ορόφου 120τμ



Αρχιτεκτονικό σχέδιο κατοικίας με χώρο για οικογένεια. Διαθέτει 4 ευρύχωρα υπνοδωμάτια, γκαρνταρόμπα και ιδιωτικό μπάνιο δίπλα στο κυρίως υπνοδωμάτιο.
Προδιαγραφές

- Κατασκευασμένο σύμφωνα με τους κανονισμούς δόμησης από εξειδικευμένους τεχνίτες και μαθητευόμενους.
- Πιστοποιητικό Συμμόρφωσης με τον Κώδικα (ΠΣΚ) που εκδίδεται μετά από τακτικές επιθεωρήσεις του συμβουλίου κατά τη διάρκεια της κατασκευής
- Πλαίσιο από επεξεργασμένη ξυλεία 90 x 45 H1 με 2 σειρές δοκών
- Στέγη & Υδρορροή Μακράς Διάρκειας Χρώματος: Αλουμινένια Ξυλουργικά: Διπλά τζάμια, Σόλουξ Χαμηλή-ε & θερμική καρδιά σε όλο το σπίτι με διαθέσιμες επιλογές χρωμάτων
- Μόνωση: Μπράντφορντ Γκολντ Οροφή R6.6, Τοίχοι Ρ2.2, Ενδοδαπέδια Ρ2.8 που διατηρεί τη ζεστασιά στο εσωτερικό
- Πλαίσια τσιμεντοσανίδας 7.5mm σε επεξεργασμένο σύστημα κοιλοτήτων σανίδων
- Ποιοτική βαφή: 3 στρώσεις εσωτερικά και εξωτερικά (Ρεσέν ή Ντουλούξ) – η επιλογή σας από χρώμα
- Κάλυβας ζεστού νερού τυπικής πίεσης 180Λ
- Ελκυστικά ντουλάπια κουζίνας στο Μελτέκα με απαλό κλείσιμο και πλαστικοποιημένο πάγκο εργασίας
Ελκυστικά εξαρτήματα μπάνιου:
Ποιοτικό νιπτήρα για κεραμική επιφάνεια, λεκάνη από υαλώδη πορσελάνη με καπάκι απαλό κλείσιμο, πλήρως επενδυμένο ακρυλικό ντους με διακοσμητικά στοιχεία, ακρυλική μπανιέρα, βρύση Methven.
Πλακάκια:
Καθαρή λευκή κεραμική επένδυση σε πλακάκια κουζίνας και μπάνιου.
Συσκευές:
Ποιοτικός φούρνος Bosch (φούρνος, εστία), απορροφητήρας κουζίνας από την Ρομπένχουντ.
Επενδύσεις δαπέδου:
Από τη σειρά παρκέ Έξτρα Χαλί Ελευθερία και τη σειρά φύλλων βινυλίου Γκόντφρεϊ Έννοια του Χιρστ 70.
2. Σχέδιο Σπιτιού Τριών Δωματίων

Ένα σχέδιο σπιτιού 3 υπνοδωματίων μπορεί να έχει το τέλειο μέγεθος για μια μεγάλη ποικιλία διαρρυθμίσεων. Τα τρία υπνοδωμάτια μπορούν να προσφέρουν ένα ξεχωριστό δωμάτιο για παιδιά, να δημιουργήσουν έναν άνετο χώρο για συγκάτοικους ή να επιτρέψουν τη χρήση γραφείων και δωματίων για μικρότερες οικογένειες και ζευγάρια. Μπορείτε τώρα να δημιουργήσετε ένα τέτοιο διάγραμμα με το Σπιτιων με σχέδια ή να προσαρμόσετε το παράδειγμα στις ανάγκες σας.
3. Σχέδιο Κατοικίας 120 Τετραγωνικών Μέτρων

Ακολουθεί ένα παράδειγμα κάτοψης μεγάλου σπιτιού, το οποίο περιλαμβάνει αρκετές κουζίνες, υπνοδωμάτια και σαλόνια. Σε κάποιο βαθμό, αυτό το σπίτι είναι κατάλληλο για να ζήσουν πολλοί άνθρωποι.
Μια κάτοψη είναι ένα εργαλείο κατασκευής που συνδυάζει φυσικά χαρακτηριστικά όπως δωμάτια και χώρους με οντότητες όπως έπιπλα με τη μορφή σχεδίων σε κλίμακα. Με λίγα λόγια, είναι μια αρχιτεκτονική απεικόνιση ενός κτιρίου.
4. Μεγαλοπρεπές σχέδιο διώροφης κατοικίας 120τμ

Αυτό το υπέροχο σχέδιο διώροφης κατοικίας προσφέρει έναν εκθαμβωτικό χώρο διαβίωσης με τον μοντέρνο σχεδιασμό και τους ευρύχωρους εσωτερικούς χώρους. Η συνολική επιφάνεια χρήσης των 120 τετραγωνικών μέτρων έχει σχεδιαστεί άψογα για να υποστηρίξει έναν άνετο και λειτουργικό τρόπο ζωής.

Το ισόγειο φιλοξενεί τους κοινόχρηστους χώρους και ένα μεγάλο σαλόνι που προσφέρει μια άνετη ατμόσφαιρα όπου μπορούν να φιλοξενηθούν οι επισκέπτες. Το σαλόνι φωτίζεται από μεγάλα παράθυρα και έχει ψηλά ταβάνια που δημιουργούν μια αίσθηση ευρυχωρίας.
Υπάρχει επίσης μια κουζίνα και τραπεζαρία ενιαίας διαρρύθμισης στο ισόγειο. Αυτή η μοντέρνα κουζίνα είναι εξοπλισμένη με συσκευές τελευταίας τεχνολογίας και διαθέτει κομψό πάγκο μπαρ. Η τραπεζαρία είναι το ιδανικό μέρος για να περάσετε ευχάριστα γεύματα με την οικογένεια και τους φίλους σας.
Ο δεύτερος όροφος φιλοξενεί τους πιο ιδιωτικούς χώρους του σπιτιού. Προσφέρει έναν άνετο χώρο απόδρασης με ένα ευρύχωρο κυρίως υπνοδωμάτιο, άφθονο χώρο ντουλάπας και ένα ευρύχωρο ιδιωτικό μπάνιο. Επίσης, στον δεύτερο όροφο υπάρχουν δύο επιπλέον υπνοδωμάτια και ένα κοινόχρηστο μπάνιο. Αυτά τα δωμάτια προσφέρουν μια άνετη και φιλόξενη ατμόσφαιρα για χαλάρωση και ιδιωτικό χρόνο.
Αυτό το σχέδιο κατοικίας 120 τετραγωνικών μέτρων κατασκευάστηκε επίσης με γνώμονα τη λειτουργικότητα. Πρόσθετες λεπτομέρειες, όπως μια τουαλέτα επισκεπτών και ένα μεγάλο χολ εισόδου στο ισόγειο, έχουν ληφθεί υπόψη για να διευκολύνουν την καθημερινή ζωή.
Υπάρχει επίσης ένας κατάλληλος χώρος έξω από το σπίτι για βεράντα ή κήπο. Σε αυτόν τον χώρο, μπορείτε να βρείτε την ευκαιρία να περάσετε χρόνο με τη φύση ή να κάνετε διακοσμήσεις στον κήπο.








Αυτό το διώροφο σπίτι 120 τετραγωνικών μέτρων προσφέρει έναν όμορφο χώρο διαβίωσης με τον μοντέρνο και κομψό σχεδιασμό του. Παρέχοντας άφθονο χώρο τόσο για κοινωνικούς όσο και για ιδιωτικούς χώρους, αυτό το σπίτι είναι το ιδανικό μέρος για να περάσετε ευχάριστες αναμνήσεις με την οικογένεια και τα αγαπημένα σας πρόσωπα.
Αυτό το υπέροχο σχέδιο κατοικίας σχεδιάστηκε επίσης με γνώμονα την πρακτική χρήση και την ενεργειακή απόδοση. Υλικά υψηλής ποιότητας και σύγχρονες τεχνολογίες χρησιμοποιούνται τόσο στον εσωτερικό όσο και στον εξωτερικό σχεδιασμό, αυξάνοντας την αισθητική εμφάνιση και τη λειτουργικότητα του σπιτιού.
Ένα από τα αξιοσημείωτα χαρακτηριστικά του σχεδίου του σπιτιού είναι η διάχυση του φυσικού φωτός στους εσωτερικούς χώρους μέσω μεγάλων παραθύρων και γυάλινων πάνελ. Αυτό μεγιστοποιεί τον φυσικό φωτισμό, εξοικονομώντας παράλληλα ενέργεια, μειώνοντας τους λογαριασμούς ηλεκτρικού ρεύματος και δημιουργώντας μια ευρύχωρη ατμόσφαιρα στο εσωτερικό.







Το εξωτερικό του σπιτιού είναι σχεδιασμένο σε μοντέρνο στυλ. Με καθαρές γραμμές και μινιμαλιστική εμφάνιση, αυτή η πρόσοψη αναδεικνύει τη φυσική ομορφιά που περιβάλλει το σπίτι. Η διαρρύθμιση της βεράντας ή του κήπου, που προσφέρει έναν ιδανικό χώρο για να χαλαρώσετε έξω ή να φιλοξενήσετε τους καλεσμένους σας, ολοκληρώνει την αισθητική του σπιτιού.
Αυτό το σχέδιο κατοικίας 120 τετραγωνικών μέτρων έχει μια διαρρύθμιση κατάλληλη για οικογενειακή διαβίωση. Το ευρύχωρο σαλόνι και η ανοιχτή κουζίνα προσφέρουν έναν άνετο χώρο διαβίωσης, ενθαρρύνοντας παράλληλα την αλληλεπίδραση μεταξύ των μελών της οικογένειας. Τα ξεχωριστά υπνοδωμάτια παρέχουν έναν ιδιωτικό χώρο για κάθε άτομο και μια άνετη εμπειρία ύπνου.
Η λειτουργικότητα του σχεδίου κατοικίας υποστηρίζεται από αποθηκευτικούς χώρους και χρήσιμες λεπτομέρειες. Οι χώροι ντουλάπας σάς επιτρέπουν να διατηρείτε τα υπάρχοντά σας οργανωμένα και να βελτιστοποιείτε τη χρήση του χώρου, διατηρώντας παράλληλα την τάξη στο σπίτι. Η τουαλέτα επισκεπτών, από την άλλη πλευρά, προσφέρει μια πρακτική λύση λαμβάνοντας υπόψη την άνεση των επισκεπτών σας.
5. Σχέδιο Σπιτιού 120τμ

Σχέδιο Σπιτιού 120τμ Αυτό το μοντέρνο σχέδιο κατοικίας 120 τετραγωνικών μέτρων συνδυάζει λειτουργικότητα, αισθητική και άνεση. Ένα ευρύχωρο και ανοιχτό εσωτερικό, φυσικά φωτισμένο δωμάτιο και ένας κομψός σχεδιασμός μετατρέπουν το σπίτι σας σε έναν χαλαρωτικό χώρο διαβίωσης. Σας επιτρέπει επίσης να απολαμβάνετε τη φύση παρέχοντας μια ομαλή μετάβαση μεταξύ του εσωτερικού και του εξωτερικού του σπιτιού.
Σχεδιασμός Σπιτιού 3D με εξωτερικό και εσωτερικό περίπατο. Μια τρισδιάστατη κινούμενη εικόνα ενός μοντέρνου σπιτιού 5×12 μέτρα σε οικόπεδο 120τμ με βεράντα στην οροφή και 4 υπνοδωμάτια.
Ακολουθεί ένα παράδειγμα κάτοψης μεγάλου σπιτιού που περιλαμβάνει αρκετές κουζίνες, υπνοδωμάτια και σαλόνια. Σε κάποιο βαθμό, αυτό το σπίτι είναι κατάλληλο για να ζήσουν πολλοί άνθρωποι. Μια κάτοψη είναι ένα εργαλείο κατασκευής που συνδυάζει φυσικά χαρακτηριστικά όπως δωμάτια και χώρους με οντότητες όπως…
Γιατί να επιλέξετε ένα σχέδιο κατοικίας 120 τμ;
Ένα σπίτι 120τμ προσφέρει έναν άνετο χώρο διαβίωσης για μια οικογένεια χωρίς να είναι πολύ μεγάλο ή ακριβό. Να γιατί πολλοί άνθρωποι στην Ελλάδα επιλέγουν αυτό το μέγεθος:
- Προσιτή κατασκευή: Ευκολότερη κατασκευή και συντήρηση σε σύγκριση με μεγαλύτερα σπίτια.
- Αποδοτικός χώρος: Με έξυπνο σχεδιασμό, τα 120 τ.μ. μπορούν να περιλαμβάνουν όλα όσα χρειάζεστε: σαλόνι, κουζίνα, 2 έως 4 υπνοδωμάτια και 1 έως 2 μπάνια.
- Ταιριάζει στα περισσότερα οικόπεδα: Ιδανικό για μικρά έως μεσαία οικόπεδα τόσο σε αστικές όσο και σε αγροτικές περιοχές.
- Ενεργειακή απόδοση: Ευκολότερη θέρμανση και ψύξη, ειδικά με τα ζεστά καλοκαίρια και τους ήπιους χειμώνες της Ελλάδας.
Τυπικά Χαρακτηριστικά ενός Σχεδίου Ελληνικής Κατοικίας 120τμ
Ένα αρχιτεκτονικό σχέδιο κατοικίας 120 τ.μ. στην Ελλάδα συχνά περιλαμβάνει:
1. Ανοιχτή Διαρρύθμιση
Τα ελληνικά σπίτια συχνά διαθέτουν ανοιχτούς χώρους όπου το σαλόνι, η τραπεζαρία και η κουζίνα είναι συνδεδεμένα. Αυτό δημιουργεί μια φωτεινή και ευρύχωρη αίσθηση και είναι ιδανικό για οικογενειακή ζωή και φιλοξενία επισκεπτών.
2. Δύο ή τρία υπνοδωμάτια
Τα περισσότερα σπίτια 120 τ.μ. διαθέτουν 2-3 υπνοδωμάτια. Μια δημοφιλής διαρρύθμιση είναι ένα κυρίως υπνοδωμάτιο με ιδιωτικό μπάνιο, συν ένα ή δύο επιπλέον δωμάτια για παιδιά, επισκέπτες ή γραφείο στο σπίτι.
3. Δύο μπάνια
Τουλάχιστον δύο μπάνια είναι κοινά—ένα για επισκέπτες ή παιδιά και ένα συνδεδεμένο με το κυρίως υπνοδωμάτιο.
4. Μπαλκόνια ή Βεράντες
Ο εξωτερικός χώρος είναι πολύ σημαντικός στην Ελλάδα. Τα αρχιτεκτονικά σχέδια συνήθως περιλαμβάνουν βεράντες, μπαλκόνια ή αίθρια για να απολαμβάνετε τον ήλιο και τη θέα.
5. Στέγες από τερακότα και πέτρινες λεπτομέρειες
Σε αγροτικές ή νησιωτικές περιοχές, τα ελληνικά σπίτια συχνά διαθέτουν κόκκινες κεραμοσκεπές, πέτρινους τοίχους και άλλα τοπικά αρχιτεκτονικά στυλ που συνδυάζονται με το περιβάλλον.
Δημοφιλή Στυλ για Σπίτια 120τ.μ. στην Ελλάδα
- Σύγχρονο Μινιμαλιστικό: Καθαρές γραμμές, μεγάλα παράθυρα και απλή κατασκευή. Συχνά βαμμένο σε λευκούς ή γήινους τόνους. Εστίαση στο φυσικό φως και στα χαρακτηριστικά εξοικονόμησης ενέργειας.
- Παραδοσιακό Ελληνικό Στυλ: Περιλαμβάνει στοιχεία όπως τοξωτά παράθυρα, μπλε παντζούρια, κεραμοσκεπές και χοντρούς πέτρινους τοίχους. Ταιριάζει υπέροχα σε χωριά και παραθαλάσσιες περιοχές.
- Μεσογειακό Στυλ: Ένα μείγμα ρουστίκ γοητείας και κομψότητας. Ζεστά χρώματα, τοίχοι από γυψομάρμαρο, πλακάκια δαπέδου και ανοιχτές αυλές.
Γιατί να επιλέξετε ένα σχέδιο κατοικίας 120τμ;
Αυτό είναι επίσης σημαντικό να σημειωθεί ότι ένα σπίτι 120τμ είναι ιδανικό για μικρές έως μεσαίες οικογένειες. Παρέχει αρκετό χώρο για καθημερινή διαβίωση, διατηρώντας παράλληλα υπό έλεγχο το κόστος κατασκευής, συντήρησης και ενέργειας. Προ-σπίτια 80 τ.μ. μ 25000: Οδηγός για έξυπνους αγοραστές

Κορυφαία βασικά οφέλη κατοικιών 120τμ το 2026.
- Προσιτό κόστος κατασκευής
- Χαμηλότερα έξοδα συντήρησης
- Αποτελεσματική χρήση του χώρου
- Γρηγορότερος χρόνος κατασκευής
- Ευκολότερη θέρμανση και ψύξη
Κοινές επιλογές διαρρύθμισης για κατοικίες 120τμ
Η επιτυχία των αρχιτεκτονικών σχεδίων των κατοικιών 120τμ εξαρτάται σε μεγάλο βαθμό από τον σχεδιασμό της διάταξης. Παρακάτω είναι οι πιο κοινές και πρακτικές επιλογές διάταξης. Πόσους πήχεις χρειάζεται ένα σπίτι 100τμ 2026;
- Διάταξη Δύο Υπνοδωματίων
Αυτή η διάταξη είναι ιδανική για ζευγάρια ή μικρές οικογένειες. Συνήθως περιλαμβάνει πολλά πράγματα ή εργαλεία που θα εξερευνήσουμε
- Δύο υπνοδωμάτια (ένα master, ένα δωμάτιο επισκεπτών/παιδιών)
- Ένα ή δύο μπάνια
- Ενιαίος χώρος καθιστικού και τραπεζαρίας
- Συμπαγής αλλά λειτουργική κουζίνα
- Διάταξη Τριών Υπνοδωματίων
Ο σχεδιασμός τριών υπνοδωματίων είναι μια από τις πιο δημοφιλείς επιλογές για κατοικίες 120τμ. Η έξυπνη κατανομή χώρου καθιστά δυνατή αυτή τη διάταξη χωρίς να αισθάνεστε γεμάτοι.
- Τυπικά χαρακτηριστικά περιλαμβάνουν::
- Ένα κυρίως υπνοδωμάτιο με συνημμένο μπάνιο
- Δύο μικρότερα υπνοδωμάτια
- Κοινόχρηστο μπάνιο
- Ανοιχτό καθιστικό, τραπεζαρία και χώρος κουζίνας
- Σχεδιασμός Ανοιχτού Σχεδίου
Οι ενιαίες διατάξεις χρησιμοποιούνται ευρέως σε μοντέρνα αρχιτεκτονικά σχέδια κατοικιών 120τμ. Αφαιρώντας περιττούς τοίχους, το σπίτι αισθάνεται μεγαλύτερο και φωτεινότερο.
Δημοφιλή αρχιτεκτονικά στυλ για κατοικίες 120τμ
Αυτό είναι επίσης σημαντικό να σημειωθεί ότι η επιλογή του σωστού αρχιτεκτονικού στυλ ενισχύει τόσο τη λειτουργικότητα όσο και την οπτική γοητεία.
- Σύγχρονη Αρχιτεκτονική
- Σύγχρονες κατοικίες 120τμ:
- Καθαρές γραμμές
- Μεγάλα παράθυρα
- Μινιμαλιστικοί εσωτερικοί χώροι
- Ουδέτερες παλέτες χρωμάτων
Σύγχρονος Σχεδιασμός
Η σύγχρονη αρχιτεκτονική συνδυάζει μοντέρνα στοιχεία με άνεση. Συχνά περιλαμβάνει πολλά εργαλεία που θα συζητήσουμε εδώ.
- Ανοιχτοί χώροι
- Μικτά υλικά (ξύλο, σκυρόδεμα, γυαλί)
- Απλά αλλά κομψά φινιρίσματα
Παραδοσιακός Σχεδιασμός Σπιτιού
Αυτό είναι επίσης σημαντικό να σημειωθεί ότι τα παραδοσιακά αρχιτεκτονικά σχέδια κατοικιών 120τμ είναι ιδανικά για ιδιοκτήτες σπιτιού που προτιμούν την κλασική αισθητική. Αυτά τα σχέδια επικεντρώνονται σε πολλά πράγματα που θα συζητήσουμε εδώ.
- Καθορισμένα δωμάτια
- Συμμετρικές διατάξεις
- Κεκλιμένες στέγες
Κορυφαίες συμβουλές βελτιστοποίησης χώρου για κατοικίες 120τμ το 2026.
Αυτό είναι σημαντικό να σημειωθεί ότι ο έξυπνος αρχιτεκτονικός σχεδιασμός είναι απαραίτητος για να κάνει ένα σπίτι 120τμ να αισθάνεται μεγαλύτερο.
- Χρησιμοποιήστε Πολυλειτουργικούς Χώρους
- Σχεδιασμός Περιοχών που εξυπηρετούν πολλαπλούς σκοπούς, όπως:
- Τραπεζαρία σε συνδυασμό με σαλόνια
- Μελετήστε τις γωνίες στα υπνοδωμάτια
Ενσωματωμένη Αποθήκευση
Οι ενσωματωμένες ντουλάπες, τα ράφια τοίχου και η αποθήκευση κάτω από σκάλες βοηθούν στη μείωση της ακαταστασίας.
Μεγιστοποιήστε Το Φυσικό Φως
Τα μεγάλα παράθυρα, οι φεγγίτες και οι γυάλινες πόρτες βελτιώνουν τη φωτεινότητα και μειώνουν το κόστος ενέργειας.
Μονώροφα έναντι διώροφων κατοικιών 120τμ το 2026.
- Μονοώροφα Σχέδια
- Μονώροφα σπίτια 120τμ είναι δημοφιλή λόγω πολλών πραγμάτων.
- Εύκολη προσβασιμότητα
- Απλή κατασκευή
- Χαμηλότερη συντήρηση
Είναι ιδανικά για ηλικιωμένους ιδιοκτήτες σπιτιού ή οικογένειες με παιδιά.
- Σχέδια Διπλού Ορόφου
Ένα διώροφο σπίτι 120τμ επιτρέπει καλύτερη χρήση γης, ειδικά σε μικρότερα οικόπεδα. Τα υπνοδωμάτια τοποθετούνται συχνά στον επάνω όροφο για ιδιωτικότητα, ενώ οι χώροι διαβίωσης παραμένουν στο ισόγειο.
Βιώσιμα και ενεργειακά αποδοτικά σχέδια
Τα σύγχρονα αρχιτεκτονικά σχέδια κατοικιών 120τμ επικεντρώνονται όλο και περισσότερο στη βιωσιμότητα.
- Χαρακτηριστικά Εξοικονόμησης Ενέργειας
- Ηλιακοί συλλέκτες
- Σωστή μόνωση
- Ενεργειακά αποδοτικά παράθυρα
- Φυσικά συστήματα εξαερισμού
Κορυφαίες ιδέες εσωτερικού σχεδιασμού για κατοικίες 120τμ το 2026.
Αυτό είναι επίσης σημαντικό να σημειωθεί ότι ο εσωτερικός σχεδιασμός παίζει σημαντικό ρόλο στο πόσο ευρύχωρο αισθάνεται το σπίτι σας.
Επιλογές Χρωμάτων
Τα ανοιχτά χρώματα όπως το λευκό, το μπεζ και το απαλό γκρι κάνουν τα δωμάτια να φαίνονται μεγαλύτερα.
Επιλογή Επίπλων
Επιλέξτε συμπαγή, μοντέρνα έπιπλα που ταιριάζουν στην κλίμακα του χώρου.
Έξυπνος Φωτισμός
Ο πολυεπίπεδος φωτισμός βελτιώνει την ατμόσφαιρα και τη λειτουργικότητα.
Σχεδιασμός προϋπολογισμού για κατοικία 120τμ το 2026.
Ο σωστός προϋπολογισμός διασφαλίζει ότι το έργο σας παραμένει σε καλό δρόμο.
- Παράγοντες κόστους που πρέπει να λάβετε υπόψη
- Τέλη αρχιτεκτονικού σχεδιασμού
- Υλικά κατασκευής
- Κόστος εργασίας
- Εσωτερικά τελειώματα
Η επιλογή ενός απλού σχεδιασμού μπορεί να μειώσει σημαντικά το συνολικό κόστος χωρίς να θυσιάσει την άνεση.
Κορυφαία λάθη που πρέπει να αποφύγετε στα σχέδια σπιτιών 120τμ το 2026.
- Δωμάτια υπερπληθυσμού
- Αγνοώντας τις ανάγκες αποθήκευσης
- Κακός σχεδιασμός εξαερισμού
- Επιλέγοντας υπερμεγέθη έπιπλα
Συχνές Ερωτήσεις
Πόσα υπνοδωμάτια χωράνε σε ένα σπίτι 120τμ;
Συνήθως χωράνε 2 έως 3 υπνοδωμάτια, ανάλογα με τη διάταξη και το αν υπάρχουν ενιαίοι χώροι.
Είναι τα 120τμ αρκετά για οικογένεια;
Ναι, ένα σπίτι 120τμ θεωρείται ιδανικό για οικογένεια 3–4 ατόμων με σωστό αρχιτεκτονικό σχεδιασμό.
Τι στυλ αρχιτεκτονικού σχεδίου ταιριάζει στα 120τμ;
Τα πιο δημοφιλή στυλ είναι το μοντέρνο, το μίνιμαλ και το μεσογειακό, λόγω λειτουργικότητας και φωτεινότητας.
Μπορεί να υπάρχει αποθήκη ή γραφείο σε σπίτι 120τμ;
Ναι, με έξυπνη αξιοποίηση χώρου μπορεί να προστεθεί αποθήκη ή μικρό γραφείο.
Είναι καλύτερο το ισόγειο ή διώροφο σπίτι στα 120τμ;
Και οι δύο επιλογές είναι καλές. Το διώροφο εξοικονομεί οικόπεδο, ενώ το ισόγειο προσφέρει ευκολία πρόσβασης.
Πόσο σημαντικός είναι ο αρχιτέκτονας για σχέδια 120τμ;
Πολύ σημαντικός, γιατί εξασφαλίζει σωστή εργονομία, αισθητική και συμμόρφωση με τους κανονισμούς.
Μπορούν τα αρχιτεκτονικά σχέδια 120τμ να είναι ενεργειακά αποδοτικά;
Ναι, με σωστό προσανατολισμό, μόνωση και σύγχρονα υλικά επιτυγχάνεται υψηλή ενεργειακή απόδοση.
Συμπέρασμα
Ένα σχέδιο κατοικίας 120 τ.μ. στην Ελλάδα είναι ιδανικό για οικογένειες, ζευγάρια ή ακόμα και συνταξιούχους που αναζητούν ένα κομψό, όμορφο και πρακτικό σπίτι. Με τον σωστό αρχιτεκτονικό σχεδιασμό, αυτός ο χώρος μπορεί να φαίνεται πολύ μεγαλύτερος από ό,τι είναι. Προσφέρει επίσης ευελιξία, άνεση και σύνδεση με το εκπληκτικό ελληνικό τοπίο.
Είτε θέλετε ένα μοντέρνο σπίτι στην πόλη είτε ένα άνετο καταφύγιο σε ένα χωριό, τα αρχιτεκτονικά σχέδια κατοικίας 120 τ.μ. στην Ελλάδα παρέχουν την τέλεια βάση για το σπίτι των ονείρων σας. Φροντίστε να συνεργαστείτε με επαγγελματίες και να λάβετε υπόψη τόσο τις τρέχουσες όσο και τις μελλοντικές σας ανάγκες κατά το σχεδιασμό του ιδανικού σας σπιτιού.
Εδώ είναι ο απλός ορισμός: τα αρχιτεκτονικά σχέδια των σπιτιών 120τμ αποδεικνύουν ότι ο έξυπνος σχεδιασμός έχει μεγαλύτερη σημασία από το μέγεθος σε πολλά έθνη όπως η Γερμανία, η Γαλλία, το Ηνωμένο Βασίλειο και οι ΗΠΑ το 2026. Αυτή είναι μια πολύ ενημερωτική είδηση ότι οι αρχιτεκτονικές ιδέες 120 τετραγωνικών μέτρων παρέχουν τον ιδανικό συνδυασμό σύγχρονης αισθητικής, οικονομικής κατασκευής και έξυπνης διαρρύθμισης χώρου στις μέρες μας το 2026.
Ένα σπίτι 120 τετραγωνικών μέτρων μπορεί να γίνει για να φαίνεται ευρύχωρο, πρακτικό και μοντέρνο, ανεξάρτητα από την προτίμησή σας για μια σύγχρονη, μινιμαλιστική ή συμβατική διάταξη. Αυτό είναι επίσης σημαντικό να σημειωθεί ότι κάθε τετραγωνικό μέτρο μπορεί να μεγιστοποιηθεί για να ενσωματώσει άνετα υπνοδωμάτια, ευρύχωρους χώρους διαβίωσης, αποτελεσματικές κουζίνες και φυσικό φωτισμό με τον σωστό αρχιτεκτονικό σχεδιασμό.