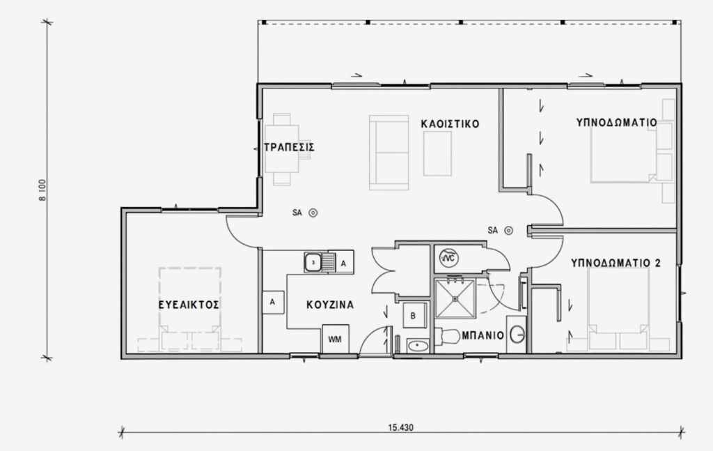
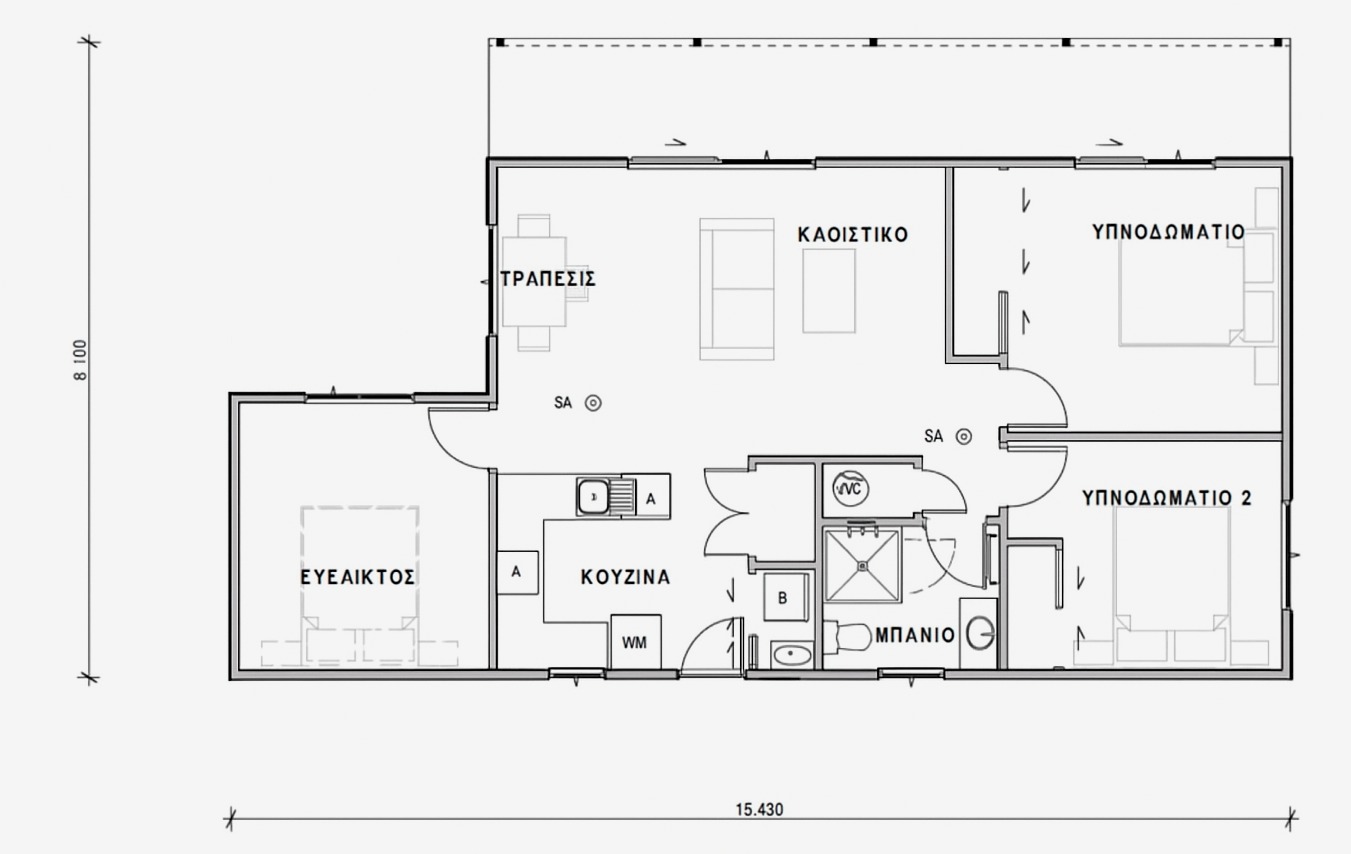
Για ένα σπιτι 80 τετραγωνικα με 2 υπνοδωματια σε στιλ μπανγκαλόου, η δημιουργία μιας βέλτιστης κάτοψης είναι ζωτικής σημασίας για να εξασφαλιστεί ένα άνετο και βιώσιμο περιβάλλον. Το ακίνητο των 80 τ.μ. αποτελείται από σαλόνι, πλήρως εξοπλισμένη κουζίνα, 2 υπνοδωμάτια και 1 μπάνιο, καθώς και μια επιπλέον τουαλέτα, και επομένως μπορεί να φιλοξενήσει 4 άτομα.
Στις επιπλέον παροχές περιλαμβάνονται τηλεόραση, καθώς και παιδικά βιβλία και παιχνίδια. Επιπλέον, στο ακίνητο διατίθενται τραπέζι πινγκ πονγκ και τραπέζι μπιλιάρδου. Ανακαλύψτε ευέλικτες κατοικίες δύο υπνοδωματίων από μια μεγάλη γκάμα σχεδίων, προτεραιοτήτων και χαρακτηριστικών, υπάρχει κάτι για όλους.
Σπιτι 80 τετραγωνικα με 2 υπνοδωματια: ένα τέλειο σπίτι στην Ελλάδα

Η Ελλάδα είναι μια χώρα γνωστή για τη φυσική ομορφιά της, το ζεστό κλίμα και τον ειρηνικό τρόπο ζωής της. Πολλοί άνθρωποι ονειρεύονται να αποκτήσουν ένα σπίτι σε αυτόν τον μεσογειακό παράδεισο. Αν ψάχνετε για κάτι πρακτικό, άνετο και οικονομικό, ένα σπιτι 80 τετραγωνικα με 2 υπνοδωματια μπορεί να είναι η τέλεια επιλογή. Αυτό το μέγεθος σπιτιού είναι ιδανικό για μικρές οικογένειες, ζευγάρια, συνταξιούχους ή ακόμα και για διακοπές.
Διάταξη ενός τυπικού σπιτιού 80 τ.μ. με 2 υπνοδωμάτια
Τα περισσότερα σπίτια 80 τετραγωνικών μέτρων έχουν σχεδιαστεί για να χρησιμοποιούν τον χώρο με έξυπνο και λειτουργικό τρόπο. Μια συνηθισμένη διάταξη περιλαμβάνει:
- Σαλόνι: Ένας κεντρικός χώρος για χαλάρωση, παρακολούθηση τηλεόρασης ή για να περνάτε χρόνο με τους καλεσμένους σας.
- Κουζίνα: Συνήθως ανοιχτή και συνδεδεμένη με το σαλόνι, επιτρέποντας περισσότερο χώρο και καλύτερη ροή.
- Δύο Υπνοδωμάτια: Ένα κυρίως υπνοδωμάτιο και ένα μικρότερο δωμάτιο για παιδιά, καλεσμένους ή ακόμα και γραφείο στο σπίτι.
- Μπάνιο: Ένα πλήρες μπάνιο με ντους ή μπανιέρα.
- Μπαλκόνι ή Βεράντα: Στην Ελλάδα, η εξωτερική διαβίωση είναι σημαντική. Πολλά σπίτια περιλαμβάνουν έναν μικρό εξωτερικό χώρο για να απολαμβάνετε τον ήλιο και τη θέα.
- Διαβάστε περισσότερα: διαρυθμιση σπιτιου 50τμ με 2 υπνοδωματια
Ένα σπιτι 80 τετραγωνικα με 2 υπνοδωματια προσφέρει ακριβώς την κατάλληλη ποσότητα χώρου. Δεν είναι πολύ μεγάλο για να είναι ακριβό ή δύσκολο στη συντήρηση, ούτε πολύ μικρό για να σας φαίνεται στριμωγμένο. Σας δίνει αρκετό χώρο για να ζείτε άνετα, διατηρώντας παράλληλα τα πράγματα απλά και αποτελεσματικά.
1. Σπίτι 80 τετραγωνικών μέτρων με 2 υπνοδωμάτια



Με συνολικά 80 θερμαινόμενα τετραγωνικά μέτρα, αυτό το σπίτι προσφέρει μια νέα εκδοχή του ρουστίκ, ορεινού στιλ σπιτιού με σανίδες και σανίδες επένδυσης που υψώνονται μέχρι να συναντήσουν μια μεταλλική στέγη με νευρώσεις. Μια μπροστινή βεράντα σε στυλ πέργκολας εκτείνεται από το μπροστινό μέρος του σπιτιού για να προσφέρει έναν εξωτερικό χώρο διαβίωσης για να τον απολαύσουν όλοι.
Οι καθαρές γραμμές ορατότητας μεταξύ του καθιστικού, της τραπεζαρίας και της κουζίνας δημιουργούν έναν άνετο χώρο για καθημερινή ζωή. Η κουζίνα στεγάζεται σε σχήμα U και περιλαμβάνει ένα μπαρ φαγητού για γρήγορα γεύματα και σνακ. Τα υπνοδωμάτια καταλαμβάνουν την αριστερή πλευρά του σχεδιασμού και βρίσκονται απέναντι από ένα πλήρες μπάνιο και ένα βοηθητικό σπίτι.
2. Σπίτι 80 τετραγωνικών μέτρων με δύο υπνοδωμάτια






Ένα σπίτι για οικογένεια ή ζευγάρι που αναζητά επιπλέον χώρο, αυτό το σπίτι μπορεί να προσαρμοστεί ακριβώς στις ανάγκες σας. Προσφέροντας τρία υπνοδωμάτια, ενιαίο καθιστικό και δύο μπάνια, αυτό το σπίτι προσφέρει εξαιρετική αξία και ευκαιρίες για αγοραστές πρώτης κατοικίας, ενοικιαζόμενα καταλύματα ή ως εξοχική κατοικία.
3. Διώροφη Κατοικία 80τμ
Αυτή η διώροφη κατοικία 80 τετραγωνικών μέτρων τραβάει την προσοχή με τον μοντέρνο και κομψό σχεδιασμό της. Μεγιστοποιώντας τους χώρους διαβίωσης με τη χρήση εσωτερικών και εξωτερικών χώρων, αυτή η κατοικία προσφέρει επίσης έναν λειτουργικό χώρο διαβίωσης.

Το σπίτι αποτελείται από ισόγειο και πρώτο όροφο. Στο ισόγειο, υπάρχει ένα μεγάλο σαλόνι, μια ευρύχωρη κουζίνα και μια τραπεζαρία. Το σαλόνι είναι επιπλωμένο με μοντέρνα έπιπλα που προσφέρουν φυσικό φως και μια άνετη ατμόσφαιρα χάρη στα μεγάλα παράθυρά του.

Η κουζίνα είναι εξοπλισμένη με συσκευές τελευταίας τεχνολογίας και είναι βολικά διαμορφωμένη. Η τραπεζαρία είναι εξοπλισμένη με τραπέζι και καρέκλες σχεδιασμένες να παρέχουν ένα άνετο περιβάλλον για την οικογένεια και τους επισκέπτες.



Στον δεύτερο όροφο, υπάρχουν τρία υπνοδωμάτια και ένα μπάνιο. Τα υπνοδωμάτια είναι σχεδιασμένα για μια ευρύχωρη και άνετη εμπειρία ύπνου. Τα μεγάλα παράθυρα προσφέρουν όμορφη θέα, ενώ αυξάνουν τη ροή του φυσικού φωτός στα δωμάτια. Το μπάνιο είναι σχεδιασμένο σε μοντέρνο στυλ και είναι εξοπλισμένο με μια πολυτελή καμπίνα ντους.

Το σπίτι διαθέτει επίσης κήπο. Ο κήπος προσφέρει το ιδανικό μέρος για να χαλαρώσετε και να περάσετε καλά σε εξωτερικούς χώρους. Ο κήπος διαθέτει μια βεράντα διακοσμημένη με όμορφα λουλούδια και φυτά.

Παρόλο που αυτό το σπίτι 80 τετραγωνικών μέτρων είναι συμπαγές, έχει σχεδιαστεί προσεκτικά για να αξιοποιεί στο έπακρο κάθε δωμάτιο. Με τον προσεγμένο σχεδιασμό και τον μοντέρνο σχεδιασμό του, αυτό το σπίτι προσφέρει μια ατμόσφαιρα που βελτιστοποιεί τους χώρους διαβίωσης.

Ως αποτέλεσμα, αυτό το διώροφο σπίτι 80 τετραγωνικών μέτρων προσφέρει έναν μοντέρνο, κομψό και λειτουργικό χώρο διαβίωσης. Έχει σχεδιαστεί για να παρέχει μια άνετη εμπειρία διαβίωσης με τον πλούσιο εσωτερικό και τον ευχάριστο εξωτερικό του. Αυτό το σπίτι, του οποίου κάθε λεπτομέρεια έχει ληφθεί υπόψη, μπορεί να αποτελέσει μια ιδανική επιλογή για να μετατραπεί σε ένα ζεστό σπίτι.
Τα υλικά και τα χρώματα που χρησιμοποιούνται στο σπίτι αντανακλούν ένα μοντέρνο στυλ, δημιουργώντας ταυτόχρονα μια ζεστή ατμόσφαιρα. Οι τοίχοι είναι βαμμένοι σε ουδέτερους τόνους και συνδυάζονται με λεπτομέρειες από φυσικό ξύλο. Αυτός ο συνδυασμός προσθέτει κομψότητα στη συνολική αισθητική του σπιτιού.

Οι αποθηκευτικοί χώροι λαμβάνονται επίσης υπόψη για την αποτελεσματική χρήση του χώρου στο σπίτι. Τα υπνοδωμάτια διαθέτουν εντοιχισμένες ντουλάπες, ενώ η κουζίνα διαθέτει άφθονο χώρο με ντουλάπια και πάγκους. Αυτό διατηρεί τα πράγματα τακτοποιημένα και διατηρεί τη συνολική τάξη του σπιτιού.
Το σπίτι διαθέτει επίσης οικολογικά χαρακτηριστικά. Οι μονωμένοι τοίχοι και τα ενεργειακά αποδοτικά παράθυρα αυξάνουν τη βιωσιμότητα του σπιτιού, ενώ παράλληλα συμβάλλουν στην εξοικονόμηση ενέργειας. Επιπλέον, έχουν χρησιμοποιηθεί σύγχρονες τεχνολογίες όπως συστήματα φωτισμού εξοικονόμησης ενέργειας και φωτιστικά εξοικονόμησης νερού.
Αυτή η διώροφη κατοικία 80 τετραγωνικών μέτρων μπορεί να αποτελέσει ιδανική επιλογή για οικογένειες ή μικρές ομάδες. Οι λειτουργικές διαρρυθμίσεις και οι ευρύχωροι χώροι διαβίωσης προσφέρουν μια άνετη και άνετη εμπειρία διαβίωσης. Ταυτόχρονα, ο μοντέρνος σχεδιασμός και οι αισθητικές λεπτομέρειες του σπιτιού έχουν σχεδιαστεί για να κερδίσουν την εκτίμηση των επισκεπτών.
Ως αποτέλεσμα, αυτή η διώροφη κατοικία 80 τετραγωνικών μέτρων προσφέρει έναν λειτουργικό και αισθητικά σχεδιασμένο χώρο διαβίωσης που αντανακλά ένα μοντέρνο στυλ. Οι πλούσιες λεπτομέρειες και οι άνετοι εσωτερικοί χώροι δημιουργούν μια ζεστή ατμόσφαιρα σπιτιού, ενώ τα οικολογικά χαρακτηριστικά αυξάνουν τη βιωσιμότητα του σπιτιού. Αυτή η κατοικία μπορεί να αποτελέσει μια ιδανική επιλογή που μπορεί να ανταποκριθεί στις προσδοκίες όσων αναζητούν λειτουργικότητα, άνεση και νεωτερικότητα.
4. Σπίτι με εμβαδόν 80 τετραγωνικών μέτρων (περιλαμβάνει σχέδια διαρρύθμισης/κατόψεων)
Παρόλο που αυτά τα δύο μονώροφα σπίτια έχουν μόνο 80 τετραγωνικά μέτρα εμβαδού, δίνουν την αίσθηση ότι είναι πολύ πιο ευρύχωρα. Οι σχεδιαστές έχουν χρησιμοποιήσει όλες τις ποικίλες μεθόδους σχεδιασμού για να δημιουργήσουν διαφορετικούς χώρους μέσα στο σπίτι, ώστε να το κάνουν πιο χρήσιμο.

Και στα δύο σπίτια, οι βιβλιοθήκες χρησιμοποιούνται για να χωρίζουν τα δωμάτια και οι τοίχοι χρησιμοποιούνται για να αποθηκεύουν τα πάντα, από κιθάρες μέχρι παπούτσια! Το πρώτο σπίτι, αν και μικροσκοπικό, αφήνει χώρο ακόμη και για ένα παιδικό δωμάτιο πίσω από μια βιβλιοθήκη που το χωρίζει από ένα γραφείο στο σπίτι.
Ακριβώς όταν σκεφτήκατε ότι τα 80 τετραγωνικά μέτρα ήταν πολύ μικρά για να επιστρέψετε σπίτι, ρίξατε μια ματιά σε αυτά! Ο σχεδιαστής για αυτό το μικρό σπίτι χρησιμοποίησε διαφορετικές υφές και χρώματα τοίχων για να ορίσει διαφορετικούς χώρους. Ο πίσω τοίχος του σαλονιού έχει μια διασκεδαστική ταπετσαρία από ψεύτικο ξύλο, η οποία το διακρίνει από την κουζίνα.

Από την άλλη γωνία σε αυτό το υπνοδωμάτιο, μπορείτε να δείτε μια ταπετσαρία με πουλιά κατά μήκος του αριστερού τοίχου. Αυτό κάνει μια δήλωση, αλλά δεν είναι υπερβολικά διακοσμημένο. Τα αιωρούμενα ράφια που βρίσκονταν στο πλάι του κρεβατιού μιμούνται στη συνέχεια κατά μήκος του τοίχου που βλέπει στο κρεβάτι. Το καθένα έχει διαφορετικά έργα τέχνης και διακοσμητικά στοιχεία. Οι κουρτίνες ταιριάζουν τέλεια με τα κλινοσκεπάσματα.

Στην άλλη πλευρά της βιβλιοθήκης θα παρατηρήσετε μια έκπληξη – ένα παιδικό δωμάτιο! Υπάρχει μια λευκή κούνια και ένα διασκεδαστικό βελούδινο κινητό από πάνω. Ένα μεγάλο λευκό οργανικό φωτιστικό κρέμεται σε αυτόν τον χώρο και τον βοηθά να τον ορίσει ως ξεχωριστό από το γραφείο. Αυτή η μικρή γωνιά είναι ιδανική για νέους γονείς που θέλουν έναν χώρο για να αγκαλιάζουν το μωρό τους και να το έχουν κοντά τους ενώ εργάζονται.
Ένας στενός διάδρομος είναι ένας παράξενος χώρος, αλλά χρησιμοποιείται προσεκτικά. Υπάρχουν μεγάλα παράθυρα που τον πλαισιώνουν, έργα τέχνης στον τοίχο και ένας χώρος για να οργανώνετε τους λογαριασμούς και τα έγγραφα. Για να διατηρήσει το στυλ απλό, ο σχεδιαστής επέλεξε έναν παγκόσμιο χάρτη σε ξύλινο στυλ για να ταιριάζει με το δάπεδο και τα στόρια.

Μερικές φορές μπορεί να είναι δύσκολο να φανταστεί κανείς μια κάτοψη ενός σπιτιού απλώς κοιτάζοντας εικόνες. Αυτή η κάτοψη σας βοηθά να φανταστείτε ολόκληρο τον χώρο. Μπορείτε να δείτε πού βρίσκεται το γραφείο που λειτουργεί ως παιδικός σταθμός και χώρος για χόμπι. Μπορείτε επίσης να δείτε ότι το σαλόνι είναι ανοιχτό στην κουζίνα. Παρόλο που υπάρχουν μόνο 80 τετραγωνικά μέτρα, έχουν συνηθίσει στα όριά τους!
Ο καναπές είναι ευέλικτος και βλέπει τόσο προς την τηλεόραση όσο και μακριά από αυτήν. Αυτό το απλό σχεδιαστικό κόλπο αξιοποιεί στο έπακρο τον χώρο χωρίς να διασπά το δωμάτιο. Μπορείτε να έχετε τους επισκέπτες στραμμένους προς την τηλεόραση ή την κουζίνα κατά την επίσκεψή σας.





Αντί να χτίσει πολλούς τοίχους, κάτι που θα έκανε τον χώρο να φαίνεται μικρός, ο σχεδιαστής επέλεξε να χρησιμοποιήσει βιβλιοθήκες για να χωρίσει τα δωμάτια. Η είσοδος ανοίγει στο σαλόνι. Η διαφανής βιομηχανική βιβλιοθήκη εκτείνεται σε όλο το χώρο από την οροφή μέχρι το πάτωμα.
Ένα γραφείο στο σπίτι έχει στηθεί στην κρεβατοκάμαρα. Αυτό λειτουργεί καλά αν δεν υπάρχει άλλος χώρος στο σπίτι και το γραφείο ταιριάζει με το σχέδιο. Το σκούρο γκρι της ντουλάπας και τα ίδια χρώματα στο γραφείο τα συνδυάζουν όλα. Φαίνεται σαν να ήταν γραφτό να βρίσκεται εκεί. Ταιριάζει και αξιοποιεί τον χώρο στο δάπεδο ανάμεσα στο κρεβάτι και την γκαρνταρόμπα.
Συνδυάζοντας το υπόλοιπο ξύλο που χρησιμοποιείται σε αυτό το σπίτι, το βοηθητικό τραπέζι είναι ένα ξύλινο κούτσουρο. Αυτό το μοναδικό σχέδιο έρχεται σε καλή αντίθεση με το αυτοσχέδιο φωτιστικό τέχνης πάνω του. Το μαύρο κεφαλάρι έρχεται επίσης σε αντίθεση με το ξύλο που χρησιμοποιείται στον πίσω τοίχο. Αυτό το δωμάτιο έχει μια συνολική αρρενωπή αίσθηση.
Το μπάνιο είναι μια επέκταση της κρεβατοκάμαρας. Οι ξύλινοι τοίχοι συναντώνται με την αντίθεση ενός καθαρού λευκού νιπτήρα και τουαλέτας. Υπάρχουν βιομηχανικά στοιχεία και εντυπωσιακός φωτισμός. Αυτός ο χώρος δίνει μια σύγχρονη αίσθηση.
5. Μονώροφη κατοικία 80 τετραγωνικών μέτρων
Ο αιωρούμενος μπλε καναπές ανοίγει την πόρτα σε αυτό το σπίτι 80 τετραγωνικών μέτρων. Τα οριζόντια ξύλινα πατώματα τραβούν το βλέμμα σας προς τα δύο παράθυρα στο πίσω μέρος του δωματίου. Η χρήση κίτρινων πινέλων στα φώτα και τα σκαμπό ενώνει την ανοιχτή κάτοψη.

Τα αιωρούμενα ράφια σε αυτό το υπνοδωμάτιο επιτρέπουν περισσότερο χώρο στο δάπεδο. Αντί να χρησιμοποιούν μια παραδοσιακή βιβλιοθήκη, τα βιβλία συνεργάζονται με τον τοίχο για να μοιάζουν με έργα τέχνης. Η τέχνη της ακουαρέλας πάνω από το κρεβάτι τραβάει το βλέμμα και προς την οροφή. Ένα χαλί με ψηλό πέλος δένει το κρεβάτι και κάνει αυτό το δωμάτιο να αισθάνεται άνετο.

Όταν ο χώρος στο δάπεδο είναι περιορισμένος, γίνεστε δημιουργικοί με αυτό που έχετε. Αυτό το δωμάτιο εξυπηρετεί πολλούς διαφορετικούς σκοπούς. Με την πρώτη ματιά, θα παρατηρήσετε τον ανοιχτό πράσινο τοίχο στα δεξιά. Υπάρχουν γραφεία εκατέρωθεν του δωματίου και καθιστικό για γραφείο στο σπίτι. Μια μεγάλη διαφανής βιβλιοθήκη χωρίζει τον χώρο γραφείου με τον χώρο καθιστικού στο πίσω μέρος.

Εκτός από γραφείο και παιδικό δωμάτιο, αυτός ο χώρος μπορεί επίσης να χρησιμεύσει ως γωνιά για χόμπι. Το διασκεδαστικό κάθισμα στο παράθυρο είναι ένα εξαιρετικό μέρος για να καθίσετε αγκαλιάζοντας ένα νεογέννητο ή παίζοντας κιθάρα. Η ηλεκτρική κιθάρα είναι κρεμασμένη στον τοίχο ως έργο τέχνης και μπορεί επίσης να αφαιρεθεί για να χρησιμοποιηθεί.

Το φωτεινό μπλε πλακάκι ηρεμεί πίσω από την μπανιέρα και υπάρχει ένα απαλό χρώμα στα πλακάκια δαπέδου που το συμπληρώνει. Το ξύλινο σχέδιο είναι απλό και κομψό μαζί με τις άλλες πινελιές σε αυτό το μικρό, αλλά οργανωμένο μπάνιο.

Αυτός ο ανοιχτός χώρος χρησιμοποιεί πιο σκούρα χρώματα από τον πρώτο, αλλά έχει ενσωματώσει πινελιές κίτρινου για να τον φωτίσει. Αυτός ο γκρι καναπές είναι ένα εξαιρετικό παράδειγμα. Αν και ο καναπές είναι ουδέτερος, ένα μαξιλάρι είναι κίτρινο μουσταρδί.

Ένας τοίχος από παράθυρα καλωσορίζει το φως στην τραπεζαρία, η οποία βρίσκεται σε μια ανώτερη πλατφόρμα. Αυτή η πλατφόρμα ορίζει αυτόν τον χώρο ως τραπεζαρία. Η υπόλοιπη κουζίνα είναι πιο βαθιά. Ο φωτισμός σε διαφορετικά ύψη προσκαλεί τους ανθρώπους να διαβάσουν, να χαλαρώσουν ή να καθίσουν όρθιοι και να φάνε ένα γεύμα.

Η αξιοποίηση του χώρου αποθήκευσης στον τοίχο είναι έξυπνη όταν έχετε περιορισμένο αποθηκευτικό χώρο σε ένα μικρό σπίτι. Αυτή η είσοδος χαρακτηρίζεται από μια κρεμαστή κρεμάστρα και μικρά καθίσματα πάγκου – αν και θα μπορούσε ίσως να χρησιμοποιήσει μια παπουτσοθήκη. Υπάρχει επίσης ένας καθρέφτης, που κάνει τον χώρο να φαίνεται μεγαλύτερος.

Από το γραφείο, μπορείτε να δείτε ότι υπάρχει ξύλο στη μία πλευρά του υπνοδωματίου και ένας λευκός τοίχος στην άλλη. Αυτό προσθέτει οπτικό ενδιαφέρον και κάνει το δωμάτιο να φαίνεται πιο πλατύ. Στο τέλος του δωματίου υπάρχει ένα φωτεινό παράθυρο που αφήνει το φυσικό φως να μπει. Αυτό είναι ένα ήσυχο μέρος για να εργαστείτε χωρίς να καταλαμβάνει πολύ χώρο στο σπίτι.

Όταν και τα δύο φωτιστικά είναι αναμμένα, το δωμάτιο αισθάνεται πιο ζεστό και πιο οικείο. Η τέχνη ακουμπάει στον τοίχο και κάνει τον χώρο να φαίνεται λιγότερο επίσημος. Τα φωτιστικά είναι κατασκευασμένα από μοναδικά αντικείμενα και θα μπορούσαν ακόμη και να είναι χειροποίητα. Αντί να ταιριάζουν με τα κομοδίνα, ο σχεδιαστής επέλεξε να τα συνδυάσει.

Επιπλέον αποθηκευτικός χώρος είναι πάντα απαραίτητος σε ένα μπάνιο. Κάτω από τον νεροχύτη, μπορείτε να δείτε ότι υπάρχουν κρυμμένες πετσέτες και ρολά υγείας. Και τα δύο αυτά αντικείμενα είναι σε κοντινή απόσταση, αλλά φαίνονται κομψά με το υπόλοιπο δωμάτιο.

Κοιτάζοντας αυτή την κάτοψη, μπορείτε να δείτε ότι η κρεβατοκάμαρα είναι αρκετά στενή. Ο σχεδιασμός λειτουργεί προς όφελος του μεγέθους.

Τοποθετώντας το γραφείο σε αυτό το δωμάτιο, διαφορετικά χρησιμοποιείται άδειος χώρος στο πάτωμα. Το ενδιαφέρον σχήμα του καναπέ σας επιτρέπει να χαλαρώνετε σε οποιονδήποτε χώρο στο σαλόνι.
Ιδανική διάταξη για ένα σπίτι 80 τετραγωνικών μέτρων το 2026.
Η επιτυχία ενός σπιτιού 80 τ.μ. εξαρτάται σε μεγάλο βαθμό από τη διάταξή του. Τα περισσότερα σχέδια περιλαμβάνουν δύο υπνοδωμάτια, ένα ή δύο μπάνια, σαλόνι, κουζίνα και τραπεζαρία. Οι διαρρυθμίσεις ανοιχτού σχεδίου χρησιμοποιούνται συνήθως επειδή εξαλείφουν τους περιττούς τοίχους και βελτιώνουν τη ροή του χώρου. Το σαλόνι τοποθετείται συνήθως κοντά στην είσοδο, συνδέοντας απευθείας με τους χώρους τραπεζαρίας και κουζίνας για να δημιουργήσετε μια φιλόξενη ατμόσφαιρα.

Υπάρχουν υπνοδωμάτια είναι συνήθως τοποθετημένα προς το πίσω μέρος του σπιτιού για να εξασφαλιστεί η προστασία της ιδιωτικής ζωής και τη μείωση του θορύβου. Το κυρίως υπνοδωμάτιο είναι ελαφρώς μεγαλύτερο, ενώ το δεύτερο υπνοδωμάτιο μπορεί να χρησιμεύσει ως παιδικό δωμάτιο, δωμάτιο επισκεπτών ή γραφείο στο σπίτι.
Οφέλη Σχεδιασμού Δύο Υπνοδωματίων
- Αυτό είναι επίσης σημαντικό ότι μια διάταξη δύο υπνοδωματίων προσθέτει ευελιξία σε ένα σπίτι 80 τετραγωνικών μέτρων. Ταιριάζει σε οικογένειες με ένα ή δύο παιδιά, ζευγάρια που σχεδιάζουν για το μέλλον ή άτομα που εργάζονται από το σπίτι.
Το δεύτερο υπνοδωμάτιο μπορεί εύκολα να προσαρμοστεί στις μεταβαλλόμενες ανάγκες, καθιστώντας το σπίτι πιο ευέλικτο με την πάροδο του χρόνου. Οι ενσωματωμένες ντουλάπες και οι έξυπνες λύσεις επίπλων συμβάλλουν στη μεγιστοποίηση του χώρου του υπνοδωματίου χωρίς ακαταστασία.
Σχεδιασμός κουζίνας και χώρου διαβίωσης
Σε ένα σπίτι 80 τμ, η κουζίνα και οι χώροι διαβίωσης παίζουν ζωτικό ρόλο στην καθημερινή άνεση. Οι ανοιχτές κουζίνες με συμπαγή ντουλάπια, κάθετη αποθήκευση και σύγχρονες συσκευές εξοικονομούν χώρο ενώ παραμένουν λειτουργικές.
Και ένας συνδυασμένος χώρος καθιστικού και τραπεζαρίας βελτιώνει το φυσικό φως και δημιουργεί μια αίσθηση ανοίγματος. Τα μεγάλα παράθυρα ή οι συρόμενες πόρτες ενισχύουν περαιτέρω τον εξαερισμό και τη φωτεινότητα.
Λύσεις μπάνιου και αποθήκευσης
Αυτό είναι επίσης σημαντικό να σημειωθεί ότι τα περισσότερα σπίτια 80 τετραγωνικών μέτρων περιλαμβάνουν ένα κύριο μπάνιο, αν και ορισμένα σχέδια προσθέτουν ένα δεύτερο μικρό μπάνιο ή ιδιωτικό μπάνιο.
Τα φωτιστικά εξοικονόμησης χώρου, όπως οι επιτοίχιες τουαλέτες, τα γωνιακά ντους και οι επιπλέουσες ματαιοδοξίες, βοηθούν να διατηρούνται τα μπάνια πρακτικά και Μοντέρνα. Η αποθήκευση συνήθως ενσωματώνεται μέσω ενσωματωμένων ραφιών, αποθήκευσης κάτω από το κρεβάτι και επίπλων πολλαπλών χρήσεων.
Κόστος κατασκευής και εκτιμήσεις προϋπολογισμού
Αυτές οι πληροφορίες είναι εκπληκτικές, ότι ένα σπίτι 80 τετραγωνικών μέτρων με 2 υπνοδωμάτια είναι οικονομικά αποδοτικό σε σύγκριση με τα μεγαλύτερα σπίτια. Το κόστος κατασκευής εξαρτάται από την τοποθεσία, τα υλικά και τα φινιρίσματα, αλλά το μικρότερο μέγεθος βοηθά στη μείωση των δαπανών εργασίας, υλικού και συντήρησης.
Υπάρχουν επίσης πολύ απλά σχέδια στέγης, τυποποιημένα υλικά και ενεργειακά αποδοτικά συστήματα που μειώνουν περαιτέρω το συνολικό κόστος, καθιστώντας αυτό το μέγεθος σπιτιού ελκυστικό για αγοραστές που έχουν επίγνωση του προϋπολογισμού.
Ενεργειακή απόδοση και βιωσιμότητα
Η ενεργειακή απόδοση είναι ένα άλλο σημαντικό πλεονέκτημα ενός σπιτιού 80 τ.μ. Οι μικρότεροι χώροι απαιτούν λιγότερη ενέργεια για θέρμανση και ψύξη. Η σωστή μόνωση, ο φωτισμός LED, οι ηλιακοί συλλέκτες και ο φυσικός αερισμός μπορούν να μειώσουν σημαντικά τους λογαριασμούς ενέργειας. Τα βιώσιμα υλικά και οι φιλικές προς το περιβάλλον επιλογές σχεδιασμού αυξάνουν επίσης τη μακροπρόθεσμη αξία του σπιτιού.
Κορυφαίος εξωτερικός χώρος και επεκτάσεις το 2026.
Αυτά είναι ενημερωτικά νέα ότι ακόμη και με ένα συμπαγές εσωτερικό, οι εξωτερικοί χώροι μπορούν να ενισχύσουν την εμπειρία διαβίωσης. Ένας μικρός Κήπος, Αίθριο ή μπαλκόνι προσθέτει επιπλέον λειτουργικό χώρο χωρίς να αυξάνει το κόστος κατασκευής. Αυτές οι περιοχές είναι ιδανικές για χαλάρωση, παιδικό παιχνίδι ή υπαίθρια τραπεζαρία και μπορούν να κάνουν το σπίτι να αισθάνεται μεγαλύτερο και πιο φιλόξενο.
Κορυφαίες συμβουλές εσωτερικού σχεδιασμού για μικρά σπίτια το 2026.
Αυτά είναι ενημερωτικά νέα ότι τα ανοιχτά χρώματα, τα μινιμαλιστικά έπιπλα και τα πολυλειτουργικά σχέδια λειτουργούν καλύτερα σε ένα σπίτι 80 τετραγωνικών μέτρων. Οι καθρέφτες, τα ανοιχτά ράφια και ο έξυπνος φωτισμός δημιουργούν την ψευδαίσθηση του χώρου. Αποφύγετε τον υπερπληθυσμό των δωματίων και εστιάστε στην απλότητα για να διατηρήσετε την άνεση και την οπτική ισορροπία.
Τελικές Σκέψεις
Αυτή είναι επίσης ενημερωτική είδηση ότι ο σχεδιασμός ενός σπιτιού 80 τετραγωνικών μέτρων με 2 υπνοδωμάτια είναι μια έξυπνη επιλογή για σύγχρονα ζευγάρια, οικογένειες ή ιδιοκτήτες σπιτιού για πρώτη φορά που χρειάζονται άνεση χωρίς να θυσιάζουν χώρο σήμερα σε πολλά έθνη όπως η Γερμανία, η Γαλλία και το Ηνωμένο Βασίλειο το 2026. Το μικρό μέγεθος του σπιτιού καθιστά δυνατή δύο προσεκτικά σχεδιασμένα υπνοδωμάτια, έναν ανοιχτό χώρο διαβίωσης, μια χρήσιμη κουζίνα και αποτελεσματική αποθήκευση.