Αρχιτεκτονικα σχεδια σπιτιων 140τμ

Αρχιτεκτονικά σχεδια σπιτιων 140τμ, Για όσους επιθυμούν να δημιουργήσουν ένα σπίτι σε 140 τετραγωνικά μέτρα, υπάρχουν πολλά διαθέσιμα αρχιτεκτονικά σχέδια κατοικίας που καλύπτουν διαφορετικά στυλ και ανάγκες. Ακολουθούν ορισμένες επιλογές που μπορείτε να λάβετε υπόψη:

Ένα σπίτι 140 τετραγωνικών μέτρων (περίπου 1506 τετραγωνικά πόδια) μπορεί εύκολα να περιλαμβάνει 3-4 υπνοδωμάτια, 2 μπάνια, κουζίνα, σαλόνι, ακόμη και γκαράζ ή βεράντα, ανάλογα με το στυλ σχεδιασμού. Αυτό που το καθιστά ακόμα πιο ενδιαφέρον είναι το πώς οι αρχιτέκτονες μεγιστοποιούν δημιουργικά τον διαθέσιμο χώρο για να προσφέρουν λειτουργικότητα χωρίς να κάνουν το σπίτι να αισθάνεται γεμάτο.

αρχιτεκτονικα σχεδια σπιτιων 140τμ: τέλεια σχέδια ορόφων

Τα τελευταία χρόνια, οι αρχιτεκτονικές τάσεις έχουν μετατοπιστεί προς τις διατάξεις ανοιχτού σχεδίου, τον φυσικό φωτισμό και τα ενεργειακά αποδοτικά σχέδια, ειδικά για σπίτια στην περιοχή 120-150 τ.μ. Αντί να εστιάζουν μόνο στο μέγεθος, οι αρχιτέκτονες δίνουν προτεραιότητα στη ροή, την αποθήκευση και τους ευέλικτους χώρους διαβίωσης που προσαρμόζονται στις μεταβαλλόμενες οικογενειακές ανάγκες.

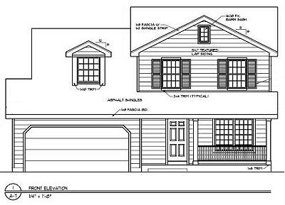
1. Σχέδιο Κατοικίας 140 Τετραγωνικών Μέτρων

Διαθέτει τέσσερα υπνοδωμάτια, δύο πλήρη μπάνια και ένα μισό μπάνιο. Μια σκεπαστή μπροστινή βεράντα σκιάζει την είσοδο. Το μεγάλο σαλόνι ανοίγει στην τραπεζαρία. Η εξοχική κουζίνα συνδέεται με το οικογενειακό δωμάτιο που είναι εξοπλισμένο με τζάκι. Η κύρια κρεβατοκάμαρα διαθέτει ιδιωτικό μπάνιο και γκαρνταρόμπα. Το σχέδιο περιλαμβάνει προαιρετικά στοιχεία ενεργού ηλιακού θερμοσίφωνα.

Πλήρεις προδιαγραφές και χαρακτηριστικά

Βασικά ΧαρακτηριστικάΥπνοδωμάτια 4, Μπάνια 2,5, Όροφοι 2, Γκαράζ 2
ΔιαστάσειςΒάθος: 32′ Ύψος: 26′ Πλάτος: 40′
Εμβαδόν* Η συνολική επιφάνεια συνήθως περιλαμβάνει μόνο τον κλιματιζόμενο χώρο και δεν περιλαμβάνει γκαράζ, βεράντες, δωμάτια μπόνους ή βεράντες.Σύνολο 1500 τετραγωνικά πόδια, Κύριος όροφος 725 τετραγωνικά πόδια, Άνω όροφος 775 τετραγωνικά πόδια.
ΟροφήΚύρια Οροφή: 8′, Άνω Οροφή, Ύψος: 8′
Εξωτερική Πλαίσιο ΤοίχουΠλαίσιο: 2″x6″
Χαρακτηριστικά ΥπνοδωματίουΥπνοδωμάτια στον επάνω όροφο, Κύριο υπνοδωμάτιο στον επάνω όροφο, Γκαρνταρόμπα
Χαρακτηριστικά ΚουζίναςΕντοιχιζόμενο Ντουλάπι, Ντουλάπι με Ντουλάπια
Επιπλέον Χαρακτηριστικά ΔωματίουΟικογενειακό Δωμάτιο, Δωμάτιο Αποσκευών
Χαρακτηριστικά γκαράζΜπροστινή είσοδος γκαράζ
Χαρακτηριστικά ΟικοπέδουΚατάλληλο για Γωνιακό Οικοπέδο, Κατάλληλο για Στενό Οικοπέδο
Εξωτερικοί χώροιΣτεγασμένη μπροστινή βεράντα
Ενεργειακά Αποδοτικά ΧαρακτηριστικάΕνεργειακά Αποδοτικός Σχεδιασμός
ΠερισσότεραΟικονομικό στην κατασκευή

Τι περιλαμβάνεται

Όλα τα σχέδια σχεδιάζονται σε κλίμακα ¼” ή μεγαλύτερη και περιλαμβάνουν:

  • Σχέδιο Θεμελίωσης: Περιλαμβάνει Σχέδιο Θεμελίωσης. Αυτή η σελίδα δείχνει όλες τις απαραίτητες σημειώσεις και διαστάσεις, συμπεριλαμβανομένων των στηλών στήριξης, των τοίχων και των εκσκαφών/μη εκσκαφών περιοχών.
  • Εξωτερικές Όψεις: Περιλαμβάνει Εξωτερικές Όψεις. Όψεις του σπιτιού και από τις τέσσερις πλευρές που δείχνουν τα εξωτερικά υλικά και τις μετρήσεις.
  • Διαβάστε περισσότερα: αρχιτεκτονικα σχεδια σπιτιων 100τμ
  • Κατόψεις: Περιλαμβάνει Κατόψεις. Λεπτομερή σχέδια για κάθε επίπεδο που δείχνουν τις διαστάσεις του δωματίου, τα χωρίσματα τοίχων, τα παράθυρα και τις πόρτες κ.λπ.
  • Διατομή: Περιλαμβάνει Διατομή Μια τομή του σπιτιού από την οροφή έως τα θεμέλια, που δείχνει σημαντικές λεπτομέρειες όπως σκάλες και κατασκευή τοίχων.
  • Σχέδια Οροφής: Περιλαμβάνει Σχέδια Οροφής Μια άποψη του σπιτιού από ψηλά που δείχνει την κλίση της στέγης, τις κορυφές, τις κοιλάδες και άλλες λεπτομέρειες.
  • Διαβάστε περισσότερα: αρχιτεκτονικα σχεδια σπιτιων 120τμ

Σημειώσεις και Λεπτομέρειες Κατασκευής Περιλαμβάνει Σημειώσεις και Λεπτομέρειες Κατασκευής Δείχνει στον κατασκευαστή πώς συναρμολογούνται τα πράγματα, όπως τοίχοι, η καμινάδα, η μόνωση και άλλα.

Μονώροφη Μονοκατοικία 140 τ μ με Αέτωμα:

Αυτό το σχέδιο διαθέτει μοντέρνο στυλ μπανγκαλόου με μεγάλα γυάλινα παράθυρα και λευκή-καφέ πρόσοψη, προσφέροντας μια γοητευτική και κομψή εμφάνιση. Περιλαμβάνει δύο υπνοδωμάτια και δύο μπάνια, καθιστώντας το μια πρακτική επιλογή για μια οικογενειακή κατοικία.

Διώροφη Μοντέρνα Μοντέρνα Κατοικία:

Αυτό το σχέδιο προσφέρει μια απλή και όμορφη πρόσοψη με επίπεδη οροφή, με μπαλκόνι στον δεύτερο όροφο και χώρο εξυπηρέτησης. Ο χώρος καθιστικού είναι σχεδιασμένος με μινιμαλιστική εμφάνιση και η κουζίνα και η τραπεζαρία συνδέονται, παρέχοντας έναν άνετο και όμορφο χώρο.

Σχεδιασμός διώροφης κατοικίας 140 τ.μ. με 4 υπνοδωμάτια:

Αυτός ο πολυτελής σχεδιασμός συνδυάζει ήρεμα και απαλά χρώματα με γυάλινα διακοσμητικά, με στέγη τύπου σιγιόν και άπαχος. Το σαλόνι και η κουζίνα είναι σχεδιασμένα με μοντέρνα στοιχεία, ενώ τα υπνοδωμάτια είναι όμορφα διακοσμημένα με κομψούς εσωτερικούς χώρους.

Σχεδιασμός Κατοικίας κατά Παραγγελία:

Για όσους αναζητούν έναν πιο εξατομικευμένο σχεδιασμό, διατίθενται σχέδια κατοικιών κατά παραγγελία, επιτρέποντας μια προσαρμοσμένη προσέγγιση στα αρχιτεκτονικά σχέδια των κατοικιών σε 140 τετραγωνικά μέτρα.

Σχεδιασμός Γοητευτικού Αγροτόσπιτου:

Αυτό το σχέδιο αγροτόσπιτου προσφέρει μια χαλαρωτική και χαλαρωτική ατμόσφαιρα, με βεράντα και ένα απλό αλλά άνετο εξωτερικό. Είναι κατάλληλο για ζευγάρια ή μικρές οικογένειες και μπορεί να προσαρμοστεί με επιπλέον φώτα για μια όμορφη σκοτεινή εμφάνιση.

Αυτά τα αρχιτεκτονικά σχέδια σπιτιών παρέχουν μια σειρά από επιλογές για να εμπνεύσουν το σχέδιό σας, είτε ψάχνετε για ένα μοντέρνο, πολυτελές ή ρουστίκ στυλ. Κάθε σχέδιο προσφέρει μοναδικά χαρακτηριστικά και στοιχεία σχεδιασμού που μπορούν να προσαρμοστούν στις συγκεκριμένες ανάγκες και προτιμήσεις σας.

Τι σημαίνει 140 τετραγωνικά μέτρα στο σχεδιασμό του σπιτιού;

Όταν οι αρχιτέκτονες μιλούν για ένα σπίτι 140τμ, αναφέρονται στη συνολική επιφάνεια του κτιρίου, η οποία ισούται με περίπου 1.500 τετραγωνικά πόδια. Αυτή η μέτρηση περιλαμβάνει όλους τους εσωτερικούς χώρους όπως υπνοδωμάτια, σαλόνια, κουζίνες, μπάνια, διαδρόμους και μερικές φορές γκαράζ ή βεράντες, ανάλογα με τον τρόπο υπολογισμού του σχεδίου.

Για να το απεικονίσετε καλύτερα, φανταστείτε ένα ορθογώνιο σπίτι περίπου 10 μέτρα επί 14 μέτρα. Αυτό το αποτύπωμα από μόνο του μπορεί να προσφέρει αρκετό χώρο για ένα άνετο οικογενειακό σπίτι με τρία υπνοδωμάτια και αρκετούς κοινόχρηστους χώρους διαβίωσης. Οι αρχιτέκτονες συχνά παίζουν με αναλογίες για να εξασφαλίσουν ότι το σπίτι αισθάνεται ανοιχτό και όχι περιορισμένο.

Ένα ενδιαφέρον πράγμα για τα σπίτια 140τμ είναι ότι είναι εξαιρετικά ευέλικτα στη διάταξη. Ορισμένες οικογένειες επιλέγουν ένα μονώροφο μπανγκαλόου, ενώ άλλοι προτιμούν ένα διώροφο σπίτι για να μεγιστοποιήσουν τον υπαίθριο χώρο. Για παράδειγμα, ένα διώροφο σχέδιο 140τμ μπορεί να τοποθετήσει χώρους διαβίωσης στο ισόγειο και υπνοδωμάτια στον επάνω όροφο για να δημιουργήσει ιδιωτικότητα και διαχωρισμό.

Γιατί τα σπίτια 140τμ είναι δημοφιλή σήμερα το 2026;

Στη σημερινή αγορά κατοικίας, το μέγεθος του σπιτιού 140τμ έχει γίνει ένα γλυκό σημείο μεταξύ προσιτής τιμής και λειτουργικότητας. Πολλές οικογένειες θέλουν αρκετό χώρο για άνετη διαβίωση, αλλά θέλουν επίσης να αποφύγουν εξαιρετικά υψηλά κόστη κατασκευής ή έξοδα συντήρησης.

Ένας λόγος για τον οποίο αυτά τα σπίτια είναι τόσο δημοφιλή είναι η αποδοτικότητα κόστους. Τα μεγαλύτερα σπίτια απαιτούν περισσότερα υλικά, εργασία και ενέργεια για να διατηρηθούν. Ένα καλοσχεδιασμένο σπίτι 140τμ προσφέρει σχεδόν όλα όσα χρειάζεται μια τυπική οικογένεια χωρίς περιττό χώρο.

Ένα άλλο σημαντικό πλεονέκτημα είναι η προσαρμοστικότητα. Οι αρχιτέκτονες μπορούν εύκολα να σχεδιάσουν αυτό το μέγεθος σπιτιού για να ταιριάζουν σε διαφορετικούς τρόπους ζωής. Για παράδειγμα, ορισμένοι ιδιοκτήτες σπιτιού μπορεί να προτιμούν ένα οικογενειακό σπίτι 3 υπνοδωματίων, ενώ άλλοι μπορεί να θέλουν 4 μικρότερα υπνοδωμάτια ή ένα γραφείο στο σπίτι. Σε ορισμένα μοντέρνα σχέδια, ένα δωμάτιο μπορεί ακόμη και να χρησιμεύσει ως υπνοδωμάτιο επισκεπτών ή απομακρυσμένος χώρος εργασίας.

Η αστική ζωή έχει επίσης επηρεάσει αυτή την τάση. Καθώς η γη γίνεται πιο ακριβή, ειδικά στις αναπτυσσόμενες πόλεις, οι ιδιοκτήτες σπιτιού χρειάζονται σχέδια που μεγιστοποιούν τα μικρότερα οικόπεδα. Ένα σπίτι 140τμ ταιριάζει απόλυτα σε μεσαίου μεγέθους οικιστικά οικόπεδα ενώ αφήνει ακόμα χώρο για κήπους ή χώρο στάθμευσης.

Τέλος, η βιωσιμότητα παίζει τεράστιο ρόλο. Τα μικρότερα σπίτια καταναλώνουν φυσικά λιγότερη ηλεκτρική ενέργεια, θέρμανση και ψύξη, γεγονός που συμβάλλει στη μείωση των περιβαλλοντικών επιπτώσεων. Όταν οι αρχιτέκτονες συνδυάζουν αυτό το μέγεθος με ενεργειακά αποδοτικά υλικά και έξυπνες διατάξεις, το αποτέλεσμα είναι ένα σπίτι που είναι οικονομικό και περιβαλλοντικά υπεύθυνο.

Leave a Comment