Τα κατοψη σπιτιου με 3 υπνοδωματια με 2 μπάνια ή 2 1/2 μπάνια είναι πολύ δημοφιλή! Η συλλογή σχεδίων σπιτιών 3 υπνοδωματίων περιλαμβάνει μια μεγάλη γκάμα μεγεθών και στυλ, από μοντέρνα σχέδια αγροικιών μέχρι σχέδια μπανγκαλόου Τεχνίτης. Τα 3 υπνοδωμάτια και 2 ή περισσότερα μπάνια είναι ο κατάλληλος αριθμός για πολλούς ιδιοκτήτες σπιτιών.
Γιατί; Επειδή με 3 υπνοδωμάτια (συμπεριλαμβανομένης της κύριας κρεβατοκάμαρας), σας δίνουν αρκετό χώρο για ένα γραφείο και ένα δωμάτιο επισκεπτών, ή δύο παιδικά δωμάτια, ή έναν χώρο για χόμπι και μια αίθουσα γυμναστικής… καταλαβαίνετε τι εννοώ. Τα σχέδια ανοιχτής διαρρύθμισης κατοψη σπιτιου με 3 υπνοδωματια που διαθέτουν διάταξη δύο υπνοδωματίων προσφέρουν ευρύχωρους χώρους συγκέντρωσης και ιδιωτικότητα για την κύρια σουίτα.
Πολλά σχέδια σπιτιών 3 υπνοδωματίων περιλαμβάνουν επιπλέον χώρο στον επάνω όροφο, ώστε να έχετε χώρο για ένα τέταρτο υπνοδωμάτιο, εάν χρειαστεί. Σε αυτήν τη συλλογή, θα βρείτε τα πάντα, από σχέδια μικροσκοπικών σπιτιών έως μικρά σχέδια σπιτιών 3 υπνοδωματίων και πολυτελή σχέδια σπιτιών. Εξερευνήστε αυτά τα σχέδια σπιτιών τριών υπνοδωματίων για να βρείτε το τέλειο σχέδιο για εσάς.
Κατοψη σπιτιου με 3 υπνοδωματια

Το κατοψη σπιτιου με 3 υπνοδωματια είναι δημοφιλή επειδή εξισορροπούν τέλεια τον χώρο και την πρακτικότητα. Αυτά τα σπίτια έχουν κατά μέσο όρο 1.500 έως 3.000 τετραγωνικά πόδια χώρου, αλλά μπορούν να κυμαίνονται από 800 έως 1500 τετραγωνικά πόδια. Συνήθως χωράνε σε ένα τυπικό οικόπεδο, ωστόσο η διαρρύθμιση περιέχει αρκετό χώρο για όλους, καθιστώντας τα την ιδανική επιλογή για ένα οικογενειακό σπίτι.


Διατίθενται σε σχεδόν κάθε αρχιτεκτονικό στυλ, όπως ράντσο, εξοχικό, Τεχνίτης, εξοχικό και πολλά άλλα. Είτε έχετε μια οικογένεια που μεγαλώνει, χρειάζεστε επιπλέον χώρο για να χρησιμοποιήσετε ως υπνοδωμάτιο επισκεπτών είτε θέλετε να χτίσετε το δωμάτιο των ονείρων σας, περιηγηθείτε στη συλλογή μας από σχέδια, όλα με τρία υπνοδωμάτια.
Κοινά Χαρακτηριστικά κατοψη σπιτιου με 3 υπνοδωματια
Η εύρεση του τέλειου σπιτιού έχει να κάνει με τις παροχές και αυτά τα σχέδια προσφέρουν μεγάλη ποικιλία. Τα σχέδια κυμαίνονται από απλά έως πολυτελή, αλλά υπάρχουν μερικά χαρακτηριστικά που θα βρείτε συχνά σε αυτά τα σπίτια:
- Κουζίνα με τραπεζαρία
- Ανοιχτή διαρρύθμιση με χώρους κουζίνας, τραπεζαρίας και καθιστικού που ρέουν ο ένας μέσα στον άλλο
- Λαχανόκηπος και πλυσταριό
- Εξωτερικοί χώροι διαβίωσης όπως μπροστινές βεράντες, πίσω βεράντες και βεράντες
- 1–2 πλήρη μπάνια, με το ένα σε στυλ Τζακ και Τζιλ
- Ένα μισό μπάνιο
- Τα πιο δημοφιλή είναι τα σχέδια κατοικίας με τρία υπνοδωμάτια και δύο μπάνια
- Ενσωματωμένο γκαράζ, με τα γκαράζ για 2 αυτοκίνητα να είναι τα πιο συνηθισμένα
- Διαβάστε περισσότερα: Σπιτι 80 τετραγωνικα με 2 υπνοδωματια
Συνήθως, πρόκειται για σχέδια κατοικιών 1,5–2 ορόφων, με επιλογές για σχεδόν κάθε τύπο οικοπέδου. Το κύριο υπνοδωμάτιο βρίσκεται συνήθως στον κύριο όροφο, ενώ τα άλλα υπνοδωμάτια βρίσκονται στον επάνω όροφο. Για τα μονώροφα σπίτια, η διαρρύθμιση της κύριας σουίτας είναι συνηθισμένη. Πολλά από αυτά τα σπίτια εμπίπτουν επίσης στην κατηγορία των οικολογικών, ενεργειακά αποδοτικών σχεδίων μας.
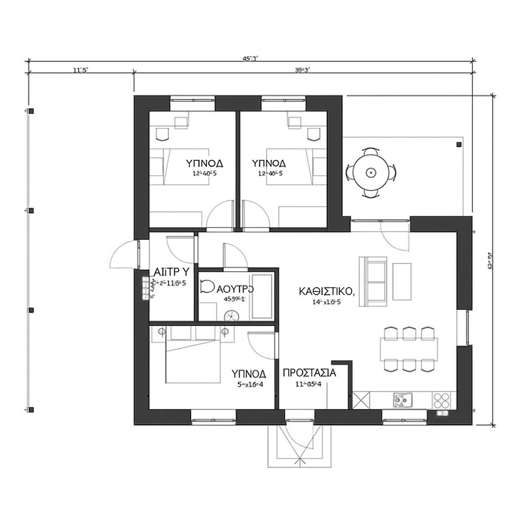
Σύγχρονο σχέδιο κατοικίας με 3 υπνοδωμάτια

Απλό, οικονομικό στην κατασκευή, μοντέρνο και κομψό σχέδιο 902 τετραγωνικά πόδια, 3 υπνοδωμάτια, 1 μπάνιο, 1 όροφος, 0 γκαράζ.



Πλήρεις προδιαγραφές και χαρακτηριστικά
| Βασικά χαρακτηριστικά | Υπνοδωμάτια: 3 Όροφος: 1 | Μπάνια: 1Γκαράζ: 0 |
| Διαστάσεις | Βάθος: 35′ 10″ Πλάτος: 48′ 3″ | Ύψος: 20′ |
| Εμβαδόν | Σύνολο: 902 τετραγωνικά πόδιαΚύριος όροφος: 902 τετραγωνικά πόδια | Τα συνολικά τετραγωνικά μέτρα συνήθως περιλαμβάνουν μόνο κλιματιζόμενο χώρο και δεν περιλαμβάνουν γκαράζ, βεράντες, δωμάτια μπόνους ή βεράντες. |
Τι περιλαμβάνεται σε αυτό το σύνολο σχεδίων
Όλα τα σχέδια σχεδιάζονται σε κλίμακα ¼” ή μεγαλύτερη και περιλαμβάνουν:
- Σχέδιο Θεμελίωσης: Περιλαμβάνει Σχέδιο Θεμελίωσης Αυτή η σελίδα δείχνει όλες τις απαραίτητες σημειώσεις και διαστάσεις, συμπεριλαμβανομένων των στηλών στήριξης, των τοίχων και των εκσκαφών/μη εκσκαφών περιοχών.
- Εξωτερικές Όψεις: Περιλαμβάνει Εξωτερικές Όψεις. Όψεις του σπιτιού και από τις τέσσερις πλευρές που δείχνουν τα εξωτερικά υλικά και τις μετρήσεις.
- Σχέδιο Κατόψεως: Περιλαμβάνει Σχέδιο Κατόψεως. Λεπτομερή σχέδια για κάθε επίπεδο που δείχνουν τις διαστάσεις του δωματίου, τα χωρίσματα τοίχων, τα παράθυρα και τις πόρτες κ.λπ.
- Διατομή: Περιλαμβάνει Διατομή. Μια φέτα του σπιτιού από την οροφή έως τα θεμέλια, που δείχνει σημαντικές λεπτομέρειες όπως σκάλες και κατασκευή τοίχων.
- Σχέδιο Υπέργειας Στέγης: Περιλαμβάνει Σχέδιο Υπέργειας Στέγης. Μια όψη του σπιτιού από ψηλά που δείχνει την κλίση της στέγης, τις κορυφές, τις κοιλάδες και άλλες λεπτομέρειες.
- Σημειώσεις και Λεπτομέρειες Κατασκευής: Περιλαμβάνει Σημειώσεις και Λεπτομέρειες Κατασκευής. Δείχνει στον κατασκευαστή πώς συναρμολογούνται τα πράγματα, όπως τοίχοι, η καμινάδα, η μόνωση και άλλα.
Παραδείγματα Σχεδίων Σπιτιών 3 Υπνοδωματίων
Τα σχέδια σπιτιών τριών υπνοδωματίων είναι το πιο συνηθισμένο μέγεθος σε πολλές χώρες. Στην πραγματικότητα, σύμφωνα με την Ελλάδα, τα σπίτια με 3 υπνοδωμάτια αποτελούν σχεδόν το ήμισυ όλων των νέων κατασκευών. Στη μεσαία κατηγορία όσον αφορά το κόστος, την απαιτούμενη έκταση γης και τον χώρο, ένα σπίτι με 3 υπνοδωμάτια παρέχει ευελιξία για διάφορους ιδιοκτήτες σπιτιών, από άγαμους, μέχρι νέα ζευγάρια, νέες οικογένειες και συνταξιούχους.
Αυτό το μέγεθος σπιτιού είναι τόσο δημοφιλές επειδή είναι ιδανικό για μια πρώτη οικογενειακή κατοικία. Για ένα νέο ζευγάρι, τα επιπλέον υπνοδωμάτια μπορούν να χρησιμοποιηθούν ως γραφείο, δωμάτιο επισκεπτών ή ακόμα και να ενοικιαστούν σε έναν ή περισσότερους συγκάτοικους για να αποφέρουν επιπλέον εισόδημα. Με ένα πρώτο παιδί, ένα από τα υπνοδωμάτια μπορεί να γίνει παιδικό δωμάτιο. Όταν δύο παιδιά είναι μικρά, μπορούν συχνά να μοιράζονται ένα δωμάτιο, επιτρέποντας στο άλλο υπνοδωμάτιο να παραμείνει γραφείο ή δωμάτιο επισκεπτών. Και τέλος, με δύο μεγαλύτερα παιδιά, το καθένα μπορεί να έχει το δικό του υπνοδωμάτιο.
Οι ελεύθεροι μπορεί να εκτιμήσουν ένα σπίτι με 3 υπνοδωμάτια επειδή μπορούν να νοικιάσουν τα δύο επιπλέον υπνοδωμάτια σε συγκάτοικους για να βοηθήσουν με τις μηνιαίες πληρωμές του στεγαστικού δανείου. Τα παιδιά με άδεια σπίτια που ζούσαν σε μεγαλύτερα σπίτια για να μεγαλώσουν παιδιά μπορούν να εξετάσουν ένα σπίτι με 3 υπνοδωμάτια μόλις τα παιδιά μετακομίσουν – τα δύο επιπλέον υπνοδωμάτια επιτρέπουν χώρο για χόμπι και ένα δωμάτιο επισκεπτών για φίλους ή παιδιά που τα επισκέπτονται.
Το τυπικό μέγεθος ενός σπιτιού 3 υπνοδωματίων στην Ελλάδα είναι κοντά στα 2000 τετραγωνικά πόδια (185τμ). Σε άλλες χώρες, ένα σπίτι 3 υπνοδωματίων μπορεί να είναι αρκετά μικρότερο. Συνήθως, η κάτοψη περιλαμβάνει ένα μεγάλο κυρίως υπνοδωμάτιο, δύο μικρότερα υπνοδωμάτια και 2 έως 2,5 μπάνια. Πρόσφατα, οι διαρρυθμίσεις 3 υπνοδωματίων και 3 μπάνιων έχουν γίνει δημοφιλείς.
Τα σχέδια σπιτιών 3 υπνοδωματίων είναι στάνταρ τόσο σε μονώροφη όσο και σε διώροφη διαμόρφωση
Μερικά βασικά πράγματα που πρέπει να λάβετε υπόψη καθώς εξετάζετε τα σχέδια σπιτιών 3 υπνοδωματίων:
Υπνοδωμάτια
Εκτός από την κύρια κρεβατοκάμαρα, φροντίστε να εξετάσετε προσεκτικά τα μικρότερα μεγέθη υπνοδωματίων. Αν σκοπεύετε να έχετε ένα παιδί σε κάθε υπνοδωμάτιο, είναι καλή ιδέα τα δύο δωμάτια να έχουν παρόμοιο μέγεθος και χαρακτηριστικά. Από την άλλη πλευρά, αν είστε άδειος σύντροφος, η διαφορά στο μέγεθος του δωματίου μπορεί να μην έχει σημασία – ένα μεγαλύτερο δεύτερο υπνοδωμάτιο μπορεί να είναι μια σουίτα επισκεπτών, μαζί με ένα μικρότερο δωμάτιο για γραφείο.
Χώρος αποθήκευσης
Είναι πολύ πιο εύκολο για μια τετραμελή οικογένεια να χωρέσει άνετα σε ένα σπίτι με 3 υπνοδωμάτια, εάν υπάρχει επαρκής αποθηκευτικός χώρος. Καθώς εξετάζετε τις διατάξεις, ελέγξτε τα ντουλάπια της κουζίνας, την αποθήκευση σεντονιών, τον χώρο ντουλαπιών και τους χώρους αποθήκευσης στο γκαράζ. Πόσο καλά καλύπτουν αυτές τις ανάγκες σας.
Χώρος εργασίας από το σπίτι
Επιτρέπει η κάτοψη να διαχωρίσει χώρο για ένα μίνι γραφείο εάν όλα τα υπνοδωμάτια θα είναι κατειλημμένα; Μερικές φορές, ένας χώρος προσγείωσης ή μια γωνιά έξω από την κουζίνα μπορεί να παρέχει χώρο για ένα γραφείο και μια εγκατάσταση υπολογιστή.
Δυνατότητες μελλοντικής επέκτασης
Εάν εξετάζετε σχέδια για σπίτια με 3 υπνοδωμάτια, αλλά γνωρίζετε ότι μπορεί τελικά να θέλετε περισσότερο χώρο, αναζητήστε επιλογές που σας δίνουν ευελιξία στο μέλλον, όπως ένα υπόγειο. Αυτή η επιπλέον επιφάνεια δαπέδου μπορεί να σας δώσει την ευελιξία να δημιουργήσετε ένα δωμάτιο παιχνιδιού, ένα δωμάτιο εφήβων, ένα δωμάτιο παιχνιδιών ή ένα επιπλέον υπνοδωμάτιο.
Ανοιχτή ιδέα ή όχι;
Πολλές κατόψεις διαθέτουν μια ανοιχτή ιδέα όπου δύο ή περισσότερα παραδοσιακά δωμάτια συνδυάζονται για να σχηματίσουν έναν ενιαίο μεγαλύτερο χώρο χωρίς ξεχωριστούς τοίχους – σκεφτείτε κουζίνα και τραπεζαρία ή τραπεζαρία και σαλόνι. Με αυτή τη διάταξη, μπορεί να είναι πιο εύκολο να παρακολουθείτε τα παιδιά και το σπίτι μπορεί να φαίνεται πιο ευρύχωρο. Από την άλλη πλευρά, αν όλοι εργάζονται ή σπουδάζουν από το σπίτι, μπορεί να προτιμάτε πιο ξεχωριστά δωμάτια.
