Σχεδια σπιτιων κατοψη σπιτιου με 3 υπνοδωματια ή 2 1/2 μπάνια είναι πολύ δημοφιλή! Η συλλογή μας από σχέδια σπιτιών με 3 υπνοδωμάτια περιλαμβάνει μια μεγάλη γκάμα μεγεθών και στυλ, από μοντέρνα σχέδια αγροικιών μέχρι σχέδια μπανγκαλόου τεχνίτης. Τα 3 υπνοδωμάτια και 2 ή περισσότερα μπάνια είναι ο σωστός αριθμός για πολλούς ιδιοκτήτες σπιτιών.
Σχέδια & Κατόψεις Σπιτιών 3 Υπνοδωματίων με Γραφείο. Αναζητήστε σχέδια σπιτιών 3 υπνοδωματίων με γραφείο. Αναζητήστε σχέδια για 2 μπάνια, 1-2 ορόφους με υπόγειο και γκαράζ και άλλα. Διατίθενται αναφορές κόστους-κατασκευής για τις περισσότερες διατάξεις. Απολαύστε εξειδικευμένη υποστήριξη.
Αυτός ο οδηγός καλύπτει σχέδια μονοκατοικίας με ανεξάρτητη κατοικία 3 υπνοδωματίων, που κυμαίνονται από περίπου 1.000 έως 2.500 τετραγωνικά πόδια. ΔΕΝ αφορά διαμορφώσεις πολυκατοικίας, διπλοκατοικίας ή βοηθητικής κατοικίας.
Αυτό λειτουργεί καλύτερα για οικογένειες, ζευγάρια ή άτομα που σχεδιάζουν μια νέα κατασκευή ή συνεργάζονται με έναν σχεδιαστή. Δεν θα βοηθήσει αν θέλετε να αγοράσετε ένα υπάρχον μεταπωλούμενο σπίτι όπου η κάτοψη είναι ήδη καθορισμένη.
Σχέδια Σπιτιών: Καλύτερες Κατόψεις 3 Υπνοδωματίων, Διατάξεις & Μεγέθη

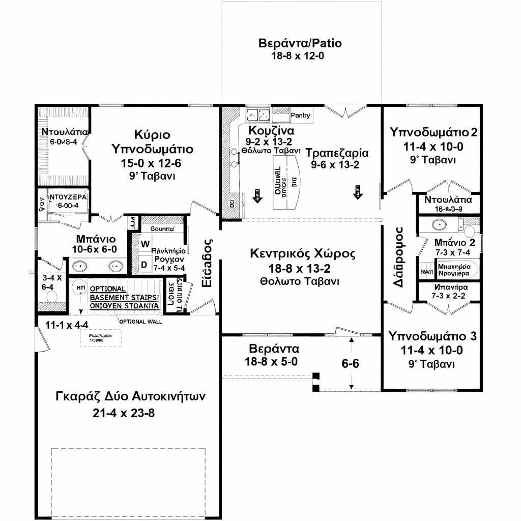
Αυτό το σπίτι προσφέρει μια πολύ λειτουργική διαρρύθμιση σε δύο επίπεδα με πολλά από τα χαρακτηριστικά που επιθυμεί η οικογένειά σας. Ευρύχωρο κυρίως υπνοδωμάτιο/μπάνιο και άφθονος αποθηκευτικός χώρος στη μεγάλη κύρια ντουλάπα. Μεγάλη ανοιχτή κάτοψη με θολωτή οροφή πάνω από την κουζίνα και το μεγάλο σαλόνι. Μπροστινή βεράντα και πίσω αίθριο. Χώρος πλυντηρίου. Επιλογή θεμελίωσης υπογείου.

Πλήρεις προδιαγραφές και χαρακτηριστικά
| Διάσταση | Βάθος: 60 ’10” Ύψος: 20 ‘3″ Πλάτος: 52″8″ |
| Περιοχή | Γκαράζ: 572 τετραγωνικά / πόδιαΚύριος όροφος: 1416 τετραγωνικά / πόδιαΒεράντα: 106 τετραγωνικά / πόδια *Η συνολική επιφάνεια συνήθως περιλαμβάνει μόνο τον κλιματιζόμενο χώρο και δεν περιλαμβάνει γκαράζ, βεράντες, δωμάτια μπόνους ή βεράντες. |
| Οροφή | Κύριο Ανώτατο Όριο: 9′ |
| Στέγη | Αρχική πίσσα: 8 σε 12Διαμόρφωση στέγης: 2×4Φορτίο στέγης: ζωντανό φορτίο: 30 # / P.s.F. νεκρό φορτίο: 10 # / P.s.F. συνολικό φορτίο: 40 # / p.s.f.Τύπος Στέγης: ΡαβδίΔευτερεύουσα Πίσσα: Καμία |
| Εξωτερική Διαμόρφωση Τοίχων | Εξωτερικό Φινίρισμα Τοίχου: Τούβλο / ΠαρακαμπτήριοςΠλαίσιο: 2×4Μόνωση: εξωτερικοί τοίχοι: 15 οροφές / οροφή: 38 όροφοι < ένας όροφος σε χώρο ανίχνευσης: 19 επιφάνειες ορόφων μεταξύ του πρώτου και του δεύτερου ορόφου (πάνω από γκαράζ κλπ.)): R-19 |
| Χαρακτηριστικά Υπνοδωματίου | Υπνοδωμάτια Στον Κύριο ΌροφοΧωρισμένα ΥπνοδωμάτιαΠερπατήστε Στην Ντουλάπα |
| Χαρακτηριστικά Κουζίνας | Φαγητό ΜπαρΝησί Της Κουζίνας |
| Πρόσθετα Χαρακτηριστικά Δωματίου | Υπολογιστής Μελέτης Γραφείου DenΑίθουσα ΆσκησηςΜεγάλο Σαλόνι ΔωμάτιοΑίθουσα Παιχνιδιών Αίθουσα ΠαιχνιδιώνΠλυντήριο Κεντρικού ΟρόφουΑίθουσα ΜέσωναποθήκηΗμιτελής Μελλοντικός Χώρος |
| Χαρακτηριστικά Γκαράζ | Γκαράζ Μπροστινής ΕισόδουΥπερμεγέθη Γκαράζ |
| Εξωτερικοί Χώροι | Καλυμμένη Μπροστινή Βεράντα |
| Περισσότερα | Οικονομικό Στην ΚατασκευήΆδειο Νέστερ |
Τι Περιλαμβάνεται σε Αυτό το Σετ Σχεδίων
Τα σχέδια συνήθως σχεδιάζονται σε κλίμακα ¼” ή μεγαλύτερη και περιλαμβάνουν:
- Φύλλο κάλυψης: απόδοση χρώματος ή ασπρόμαυρη εικόνα του εξωτερικού
- Σχέδια θεμελίωσης: σχεδιασμένο σε κλίμακα 1/4″, αυτή η σελίδα δείχνει όλες τις απαραίτητες σημειώσεις και διαστάσεις, συμπεριλαμβανομένων των στηλών στήριξης, των τοίχων και των ανασκαμμένων και μη ανασκαμμένων περιοχών.
- Κατόψεις: λεπτομερή σχέδια, σχεδιασμένα σε κλίμακα 1/4″ για κάθε επίπεδο που δείχνει διαστάσεις δωματίου, χωρίσματα τοίχων, παράθυρα κ. λπ. εκτός από τη θέση των ηλεκτρικών πριζών και των διακοπτών.
- Εξωτερικές ανυψώσεις: μια εικόνα σχεδιαγράμματος και των τεσσάρων πλευρών που δείχνει Εξωτερικά υλικά και μετρήσεις.
- Εσωτερικές αυξήσεις: όπου ισχύει, κάθε σύνολο σχεδίων σπιτιών περιλαμβάνει τις σχετικές εσωτερικές αυξήσεις, συμπεριλαμβανομένων των γραφείων, των λεπτομερειών γραφείων, των στηλών και των τοίχων με τους μοναδικούς όρους.
- Εναέρια σχέδια στέγης: Εναέρια άποψη της οροφής.
- Διατομές: μια κάθετη άποψη του σπιτιού από τη στέγη στο ίδρυμα που παρουσιάζει λεπτομέρειες της πλαισίωσης, της κατασκευής, του δαπέδου και του υλικού κατασκευής σκεπής.
- Ηλεκτρικά σχέδια: φωτισμός, πρίζες, διακόπτες, ανιχνευτές κ. λπ.
- Ανυψώσεις ντουλαπιών κουζίνας: κλιμακωτά σχέδια εσωτερικών ντουλαπιών.
- Τμήματα τοίχων: εξωτερικά τμήματα τοίχων και στεγών και λεπτομέρειες ειδικότητας.
- Κατασκευή σημειώσεις και λεπτομέρειες: δείχνει βασικά μέρη και συγκροτήματα συνιστάται για το σπίτι, ώστε ο οικοδόμος μπορεί να δει πώς τα πράγματα έρχονται μαζί.
Λεπτομέρειες πλαισίωσης μέγεθος δοκού οροφής και απόσταση και διατάξεις. Εάν περιλαμβάνεται, η διάταξη πλαισίωσης προορίζεται να είναι μόνο προτεινόμενη διάταξη. Τα φορτία σχεδιασμού και οι καιρικές συνθήκες ποικίλλουν ανά περιοχή. Ως αποτέλεσμα, το μέγεθος, η απόσταση και η διάταξη όλων των δομικών στοιχείων σε αυτό το σχέδιο σπιτιού μπορεί να χρειαστούν έγκριση από έναν δομικό μηχανικό ή έναν υπάλληλο κώδικα με βάση τη συγκεκριμένη τοποθεσία του ιστότοπού σας.
Τι είναι ένα σχέδιο κατοικίας 3 υπνοδωματίων;
Ένα σχέδιο κατοικίας για ένα σπίτι 3 υπνοδωματίων είναι ένα διάγραμμα σε κλίμακα που δείχνει τη διάταξη, τις διαστάσεις και τη διάταξη των δωματίων μιας κατοικίας με τρεις χώρους ύπνου. Ορίζει πώς χρησιμοποιείται κάθε τετραγωνικό μέτρο — από την τοποθέτηση του κύριου διαμερίσματος μέχρι τη ροή μεταξύ των ζωνών κουζίνας, καθιστικού και υπνοδωματίου.
Τρία υπνοδωμάτια. Αυτό εξακολουθεί να είναι το ιδανικό σημείο για τις περισσότερες οικογένειες στην Ελλάδα — και τα δεδομένα το υποστηρίζουν.
Σύμφωνα με την Εθνική Ένωση Κατασκευαστών Κατοικιών (NAHB, Νοέμβριος 2025), τα σπίτια τριών υπνοδωματίων αποτελούσαν το 47% όλων των νέων μονοκατοικιών που ξεκίνησαν να κατασκευάζονται το 2024, το υψηλότερο μερίδιο αγοράς τους από το 2011. Η πίεση για προσιτή τιμή απομακρύνει τους αγοραστές από τα σχέδια τεσσάρων υπνοδωματίων και οι κατασκευαστές ανταποκρίνονται με πιο έξυπνες, πιο αυστηρές διατάξεις που κάνουν περισσότερα με λιγότερα τετραγωνικά μέτρα.
Πόσο χώρο χρειάζεται στην πραγματικότητα ένα σπίτι με 3 υπνοδωμάτια;

Η σύντομη απάντηση: μεταξύ 1.200 και 2.000 τετραγωνικών ποδιών καλύπτει άνετα τις περισσότερες οικογένειες.
Το θέμα είναι να: τα τετραγωνικά μέτρα είναι μια παγίδα στην οποία πέφτουν πολλοί κατασκευαστές που αρχίζουν να χτίζουν. Ψωνίζουν για το μεγαλύτερο σχέδιο που μπορούν να αντέξουν οικονομικά στα χαρτιά — χωρίς να σκέφτονται πώς θα μετακινηθούν στην πραγματικότητα μέσα στο σπίτι μια Τρίτη πρωί, όταν δύο άτομα χρειάζονται το μπάνιο και κάποιος φτιάχνει καφέ.
Γρήγορη Σύγκριση: Σχέδια 3 Υπνοδωματίων ανά Μέγεθος
| Σειρά Μεγέθους | Καλύτερο Για | Βασικό Όφελος | Περιορισμός |
| 1,000–1,400 τετραγωνικά πόδια | Ζευγάρια, μικρές οικογένειες, περιορισμένοι προϋπολογισμοί | Χαμηλό κόστος κατασκευής, αποτελεσματική διάταξη | Περιορισμένη αποθήκευση, μικρότερα υπνοδωμάτια |
| 1,500–1,800 τετραγωνικά πόδια | Αυξανόμενες οικογένειες, ανάγκες WFH | Ισορροπία χώρου και κόστους | Απαιτεί έξυπνο σχεδιασμό για την αποφυγή αποβλήτων |
| 1,800–2,200 τετραγωνικά πόδια | Οικογένειες που θέλουν flex δωμάτια | Δωμάτιο για το γραφείο, πλυντήριο, mudroom | Υψηλότερο κόστος ανά τετραγωνικά πόδια |
| 2,200–2,500 τετραγωνικά πόδια | Πολλαπλών γενεών, διασκεδαστές | Διαχωρισμός, μεγαλύτερη κύρια σουίτα | Το πιο ακριβό για κατασκευή και συντήρηση |
Ένα πράγμα που παραλείπουν οι περισσότεροι οδηγοί: το σχήμα του αποτυπώματος έχει σημασία όσο και το μέγεθος. Ένα απλό ορθογώνιο σχέδιο με τέσσερις γωνίες κοστίζει σημαντικά λιγότερο για να κατασκευαστεί από ένα σχέδιο με χτυπήματα, γωνιακούς τοίχους ή φτερά σε σχήμα L-ακόμη και στο ίδιο τετραγωνικό μήκος σε πόδηα. Με το κόστος κατασκευής να παραμένει Ιστορικά αυξημένο έως το 2025 και το 2026, αυτό είναι το είδος της λεπτομέρειας που μπορεί να σας εξοικονομήσει ή να σας κοστίσει δεκάδες χιλιάδες.
Ή ίσως πρέπει να το πω με αυτόν τον τρόπο: η κάτοψη που ερωτεύεστε στο Pinterest μπορεί να είναι 1.600 τετραγωνικά πόδια — αλλά αν έχει έξι εξωτερικές γωνίες αντί για τέσσερις, το απόσπασμα του οικοδόμου σας θα μπορούσε να μοιάζει με 2.000 τετραγωνικά πόδια.
Οι 3 Πιο Συνηθισμένες Διατάξεις Κάτοψης 3 Υπνοδωματίων (Και Όταν Το Καθένα Λειτουργεί)
Δεν δημιουργούνται όλα τα σχέδια τριών υπνοδωματίων ίσα. Η διάταξη αυτών των υπνοδωματίων — σε σχέση μεταξύ τους και με τους κοινόχρηστους χώρους διαβίωσης — αλλάζει τα πάντα για το πόσο βιώσιμο το σπίτι αισθάνεται πραγματικά.

Διάταξη Χωριστού Υπνοδωματίου
Η κύρια σουίτα βρίσκεται στη μία πλευρά του σπιτιού. Τα δύο δευτερεύοντα υπνοδωμάτια βρίσκονται στην απέναντι πτέρυγα, χωρισμένα από την κουζίνα, το σαλόνι ή την τραπεζαρία. Αυτή είναι η κυρίαρχη διάταξη σε μονοκατοικίες αυτή τη στιγμή και είναι όλο και πιο δημοφιλής επειδή λύνει πραγματικά ένα πρόβλημα θορύβου που δημιούργησαν παλαιότερα σχέδια.
Κοιτάξτε-αν βρίσκεστε σε ένα νοικοκυριό όπου ένας ενήλικας εργάζεται νωρίς το πρωί και τα παιδιά είναι αργά, μια διαχωρισμένη διάταξη δεν είναι πολυτέλεια. Είναι μια λειτουργική απαίτηση. Οι χρήστες που έχουν δοκιμάσει σχέδια συμπλέγματος διαδρόμου με λεπτούς εσωτερικούς τοίχους αναφέρουν συχνά ότι η μεταφορά θορύβου μεταξύ των δωματίων διαταράσσει τον ύπνο για ολόκληρο το νοικοκυριό.
Σύμφωνα με Housewithplans.com οι τάσεις του 2026 αναφέρουν ότι τα σχέδια χωρισμένων υπνοδωματίων έχουν γίνει ένα καθοριστικό χαρακτηριστικό που ζητούν ειδικά οι αγοραστές επειδή “ελαχιστοποιούν τη μεταφορά ήχου και κάνουν την κύρια σουίτα να αισθάνεται περισσότερο σαν ένα ήσυχο καταφύγιο.”
Διάταξη Διαδρόμου-Συμπλέγματος
Και τα τρία υπνοδωμάτια μοιράζονται έναν διάδρομο, συνήθως από έναν κεντρικό διάδρομο. Είναι η πιο παραδοσιακή διαμόρφωση και εξακολουθεί να έχει νόημα για οικογένειες με μικρά παιδιά που χρειάζονται στενή εγγύτητα με τους γονείς τη νύχτα. Είναι επίσης συνήθως το φθηνότερο για κατασκευή, επειδή οι υδραυλικές εγκαταστάσεις και η θέρμανση, ο εξαερισμός και ο κλιματισμός μπορούν να ενοποιηθούν πιο στενά.
Ορισμένοι ειδικοί υποστηρίζουν ότι το σύμπλεγμα διαδρόμου είναι ξεπερασμένο. Αυτό ισχύει για άδειες φωλιές ή ζευγάρια που εργάζονται. Αλλά αν ασχολείστε με νήπια ή παιδιά κάτω των οκτώ ετών, η εγγύτητα έχει μεγαλύτερη σημασία από τον ακουστικό διαχωρισμό — και ένα συμπαγές σύμπλεγμα διαδρόμου μπορεί στην πραγματικότητα να είναι πιο πρακτικό.
Διώροφη Διάταξη
Το ισόγειο χειρίζεται το σαλόνι, την κουζίνα, την τραπεζαρία και συχνά την κύρια σουίτα. Ο επάνω όροφος παίρνει τα δευτερεύοντα υπνοδωμάτια. Αυτό είναι το go-to για στενά αστικά μέρη όπου δεν μπορείτε να εξαπλωθείτε ευρέως αλλά χρειάζεστε το τετραγωνικό μήκος σε πόδηα. Η κατασκευή του κοστίζει περισσότερο ανά τετραγωνικό πόδι από ένα μονοώροφο σχέδιο λόγω των σκαλοπατιών, των απαιτήσεων μεταφοράς φορτίου και της πολυπλοκότητας της θέρμανσης, του εξαερισμού και του κλιματισμού.
Αντι-διαισθητική διορατικότητα: οι περισσότεροι άνθρωποι υποθέτουν ότι τα διώροφα σπίτια σας δίνουν περισσότερο χρησιμοποιήσιμο χώρο ανά δολάριο. Τα δεδομένα λένε διαφορετικά-τα σχέδια ενός ορόφου λαμβάνουν σταθερά υψηλότερες βαθμολογίες ικανοποίησης αγοραστών για τη βιωσιμότητα, εν μέρει λόγω της προσβασιμότητας και εν μέρει επειδή ο ήχος δεν ταξιδεύει μέσα από ένα πάτωμα.
Πώς να επιλέξετε τη σωστή κάτοψη 3 υπνοδωματίων: μια διαδικασία βήμα προς βήμα
Για να επιλέξετε το σωστό σχέδιο σπιτιού 3 υπνοδωματίων, ακολουθήστε τα εξής βήματα:
- Ορίστε τα μη διαπραγματεύσιμα-λίστα δωματίων που χρησιμοποιείτε καθημερινά έναντι δωματίων που “σκέφτεστε” ότι θα χρησιμοποιήσετε.
- Ορίστε έναν ρεαλιστικό προϋπολογισμό τετραγωνικών ποδιών-πολλαπλασιάστε τα τετραγωνικά πόδια στόχου σας με τον τοπικό μέσο όρο κόστους ανά τετραγωνικό πόδι.
- Επιλέξτε τον τύπο διάταξης του υπνοδωματίου σας-διαίρεση, σύμπλεγμα ή διώροφο με βάση το νοικοκυριό σας.
- Αξιολογήστε το σχήμα του αποτυπώματος-μετρήστε τις εξωτερικές γωνίες. λιγότερες γωνίες = χαμηλότερο κόστος κατασκευής.
- Ελέγξτε για επιλογές τροποποίησης-επιβεβαιώστε ότι ο πωλητής του σχεδίου επιτρέπει διαρθρωτικές αλλαγές.
Ανοιχτή έννοια εναντίον. καθορισμένα δωμάτια σε σχέδιο 3 Υπνοδωματίων
Αυτή η συζήτηση δεν έχει διευθετηθεί. Και έχω δει αντικρουόμενα σήματα-ορισμένες έρευνες οικοδόμων δείχνουν ότι η ανοιχτή ιδέα εξακολουθεί να κυριαρχεί στα αιτήματα, ενώ οι αναφορές σχεδιασμού 2025-2026 σημειώνουν με συνέπεια ότι οι αγοραστές ζητούν μικρο-ζώνες εντός ανοιχτών διατάξεων: καθορισμένες περιοχές που δεν αισθάνονται σαν ξεχωριστά δωμάτια αλλά μειώνουν την επίδραση της πλήρους ανοιχτής έννοιας.
Η αλήθεια είναι πιθανώς ότι η καθαρή ανοιχτή έννοια-όπου η κουζίνα, η τραπεζαρία και οι χώροι διαβίωσης μοιράζονται ένα ενιαίο αδιαίρετο δωμάτιο — κορυφώθηκε γύρω στο 2018-2020 και τώρα εξελίσσεται.
Αυτό που το αντικαθιστά είναι ένα υβρίδιο: ένας ανοιχτός πυρήνας με οπτικούς ή αρχιτεκτονικούς δείκτες ζώνης. Σκεφτείτε μια πτώση οροφής πάνω από την τραπεζαρία, ένα μισό τοίχο στη χερσόνησο της κουζίνας ή ένα τζάκι διπλής όψης που ορίζει το καθιστικό χωρίς να το κλείνει. Σύμφωνα με την αρχιτεκτονική ανάλυση του 2025 της εταιρείας σπιτιων με σχέδια, αυτή η προσέγγιση “διατηρεί τη ροή και τη σύνδεση” ενώ δίνει στις οικογένειες “λίγη διάκριση” μεταξύ λειτουργικών ζωνών.
Ανοιχτή έννοια εναντίον. καθορισμένα δωμάτια: το Ανοιχτή έννοια ταιριάζει σε οικογένειες που διασκεδάζουν συχνά και θέλουν μια συνδεδεμένη ροή κουζίνας-διαβίωσης, επειδή οι οπτικές γραμμές και η κοινωνικοποίηση έχουν προτεραιότητα. Τα καθορισμένα δωμάτια λειτουργούν καλύτερα όταν η διαχείριση του θορύβου, η ιδιωτικότητα ή η διαβίωση πολλών γενεών είναι η προτεραιότητα. Η βασική διαφορά είναι πώς το σπίτι χειρίζεται αλληλεπικαλυπτόμενες δραστηριότητες-μαγείρεμα, εργασία και παρακολούθηση τηλεόρασης ταυτόχρονα.
Δημοφιλή στυλ κάτοψης 3 Υπνοδωματίων το 2026
Το στυλ επηρεάζει περισσότερο από την αισθητική. Διαμορφώνει άμεσα το αποτύπωμα, τη γραμμή οροφής και τι θα πληρώσετε για να χτίσετε.
Η σύγχρονη αγροικία παραμένει το πιο δημοφιλές στυλ στις ΗΠΑ, αποτελώντας το 33% των πωλήσεων σχεδίων σπιτιών το 2025 σύμφωνα με Houseplans.com. έχει εξελιχθεί πέρα από τα ασπρόμαυρα εξωτερικά σε θερμότερους, γήινους τόνους σε συνδυασμό με φυσικό ξύλο. Για ένα σχέδιο 3 υπνοδωματίων, το στυλ αγροικίας προσφέρει συνήθως μια μονοκατοικία με χωριστή κρεβατοκάμαρα με σκεπαστή μπροστινή βεράντα και ανοιχτό πυρήνα διαβίωσης-γι ‘ αυτό λειτουργεί τόσο καλά λειτουργικά, όχι μόνο οπτικά.
Τα σχέδια ράντσο αυξάνονται. Η ζήτηση για σπίτια ενός επιπέδου συνεχίζει να αυξάνεται λόγω των προτιμήσεων γήρανσης, των εκτιμήσεων προσβασιμότητας και της χαμηλότερης πολυπλοκότητας του HVAC. Για οικογένειες 3 υπνοδωματίων, ένα καλά σχεδιασμένο ράντσο εξαλείφει τις σκάλες εξ ολοκλήρου-κάτι που έχει μεγαλύτερη σημασία από ό, τι συνειδητοποιούν οι περισσότεροι αγοραστές μέχρι να ζήσουν σε ένα διώροφο σπίτι για δεκαπέντε χρόνια.
Τα Σιταποθήκες αυξήθηκαν από 8% σε 11% των πωλήσεων σχεδίων μεταξύ 2024 και 2025. Ένα απλό ορθογώνιο αποτύπωμα “barndo” — συχνά 40×60 ή 40×80 πόδια-είναι πραγματικά μια από τις πιο οικονομικά αποδοτικές δομές για κατασκευή. Τρία υπνοδωμάτια ταιριάζουν άνετα στο εσωτερικό με χώρο για ανοιχτό σαλόνι και ένα μεγάλο γκαράζ.
Το Modern cottage είναι ο αναδυόμενος υποψήφιος-αυξάνεται από 6% σε 7% των πωλήσεων το 2025, περιγράφεται από Housewithplans.com ως η ” επόμενη εξέλιξη του στυλ αγροικίας.”Περιμένετε απότομα αετώματα, λεπτομέρειες από τούβλα ή πέτρα και ζεστούς εσωτερικούς χώρους.
Συχνές Ερωτήσεις
Ποια είναι η καλύτερη διάταξη κάτοψης για ένα οικογενειακό σπίτι 3 υπνοδωματίων;
Μια μονοκατοικία με χωριστή κρεβατοκάμαρα είναι η πιο πρακτική για τις περισσότερες οικογένειες — χωρίζει την κύρια σουίτα από τα παιδικά δωμάτια, μειώνοντας τον θόρυβο. Η ανοιχτή έννοια που ζει με ένα απλό ορθογώνιο αποτύπωμα διατηρεί το κόστος κατασκευής κάτω.
Πόσο μεγάλο πρέπει να είναι ένα σπίτι 3 υπνοδωματίων;
Μεταξύ 1.500 και 1.800 τετραγωνικών ποδιών ταιριάζει άνετα σε μια τετραμελή οικογένεια. Η σειρά των 1.500-1.999 τετραγωνικών ποδιών είναι η πιο δημοφιλής βαθμίδα μεγέθους στις τρέχουσες πωλήσεις σχεδίων της Ελλάδας, εξισορροπώντας το χώρο με την οικονομική προσιτότητα.
Πρέπει να επιλέξω ένα μονοώροφο ή διώροφο σχέδιο 3 υπνοδωματίων;
Μονώροφο εάν έχετε αρκετό πλάτος παρτίδας-τα μονώροφα σπίτια έχουν υψηλότερη βαθμολογία στη βιωσιμότητα και κοστίζουν λιγότερο για να διατηρηθούν μακροπρόθεσμα. Διώροφα έργα για στενά αστικά οικόπεδα ή όταν μεγιστοποιούν τετραγωνικά μέτρα σε περιορισμένο αποτύπωμα.
Γιατί το απόσπασμα κάτοψης 3 υπνοδωματίων μου έρχεται τόσο ακριβό;
Η πολυπλοκότητα του αποτυπώματος οδηγεί το κόστος. Κάθε πρόσθετη εξωτερική γωνία, χτύπημα-έξω, ή γωνιακός τοίχος προσθέτει στη διαμόρφωση της εργασίας και των υλικών αποβλήτων. Ένα απλό ορθογώνιο σχέδιο 4 γωνιών του ίδιου τετραγωνικού μήκους θα λαμβάνει σταθερά χαμηλότερα εισαγωγικά οικοδόμων.
Πότε πρέπει να τροποποιήσω ένα σχέδιο αποθέματος έναντι μίσθωσης προσαρμοσμένου αρχιτέκτονα;
Χρησιμοποιήστε ένα σχέδιο αποθεμάτων με τροποποιήσεις για τυπικές ανάγκες — είναι ταχύτερο και φθηνότερο, συχνά 80-90% λιγότερο από ένα πλήρες προσαρμοσμένο σχέδιο. Μίσθωση ενός προσαρμοσμένου αρχιτέκτονα όταν η παρτίδα σας έχει ασυνήθιστες διαστάσεις, οι τοπικοί κωδικοί απαιτούν σημαντικές αλλαγές ή το πρόγραμμά σας είναι ιδιαίτερα συγκεκριμένο.
Συμπέρασμα
Η σχεδια σπιτιων κατοψη σπιτιου με 3 υπνοδωματια στην Ελλάδα προσφέρει όλα όσα χρειάζεται ένας σύγχρονος ιδιοκτήτης σπιτιού, άνεση, ομορφιά, αποτελεσματικότητα και χαρακτήρα. Είτε χτίζετε το σπίτι των ονείρων σας δίπλα στη θάλασσα είτε μικραίνετε το σπίτι για μια πιο απλή ζωή, αυτό το στυλ είναι διαχρονικό και πρακτικό. Με προσεγμένο σχεδιασμό, έξυπνο σχεδιασμό και μια δόση ελληνικής πινελιάς, μπορείτε να απολαύσετε έναν χώρο που σας ταιριάζει απόλυτα τόσο εσωτερικά όσο και εξωτερικά.