Κατοψη σπιτιου 75τμ με συνδυασμό κουζίνας-καθιστικού, χολ, υπνοδωμάτιο και μπάνιο. Οι νέες οικογένειες ίσως θελήσουν να κάνουν το μπάνιο μεγαλύτερο επεκτείνοντας το χολ και μετακινώντας την πόρτα δίπλα στις σκάλες.
Τα μικρά ενεργειακά αποδοτικά σπίτια, φυσικά, μπορούν να χρησιμοποιηθούν ως εξοχικές κατοικίες ή ως καταφύγια για το Σαββατοκύριακο μιας μικρής οικογένειας. Άτομα με περιορισμένο προϋπολογισμό στρέφονται όλο και περισσότερο σε αυτό το κατοψη σπιτιου 75τμ.
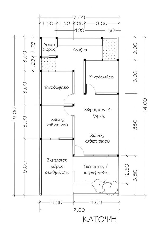
Κατοψη σπιτιου 75τμ (807 τετραγωνικά πόδια)
Προσφέρουμε μια σειρά από σχέδια κατοικιών σχεδιασμένα ειδικά για μικρές κατοψη σπιτιου 75τμ (περίπου 807 τετραγωνικά πόδια). Αυτά τα συμπαγή και αποτελεσματικά σχέδια είναι ιδανικά για όσους αναζητούν μικρότερο χώρο ή σκέφτονται να μειώσουν τον χώρο. Ακολουθούν ορισμένα βασικά χαρακτηριστικά που μπορείτε να περιμένετε να βρείτε στην κατοψη σπιτιου 75τμ:
Βελτιστοποίηση Χώρου
Τα σχέδια των σπιτιών μας δίνουν προτεραιότητα στην αποτελεσματική χρήση του χώρου για μεγιστοποίηση της λειτουργικότητας και της άνεσης. Συχνά διαθέτουν ανοιχτές διατάξεις που συνδυάζουν χώρους καθιστικού, τραπεζαρίας και κουζίνας για να δημιουργήσουν μια αίσθηση ευρυχωρίας.
Δωμάτια Πολλαπλών Χρήσεων
Για να αξιοποιήσουμε στο έπακρο τον διαθέσιμο χώρο, τα σχέδια των σπιτιών μας μπορεί να περιλαμβάνουν δωμάτια πολλαπλών χρήσεων που μπορούν να χρησιμεύσουν ως γραφείο στο σπίτι, δωμάτιο επισκεπτών ή ευέλικτος χώρος. Αυτή η ευελιξία σας επιτρέπει να προσαρμόσετε τον χώρο με βάση τις μεταβαλλόμενες ανάγκες σας.
Εξωτερική Διαβίωση
Πολλά από τα μικρά σχέδια σπιτιών μας των 75 τ.μ. ενσωματώνουν εξωτερικούς χώρους διαβίωσης, όπως στεγασμένες βεράντες, αυλές ή μπαλκόνια. Αυτοί οι χώροι επεκτείνουν τον χώρο διαβίωσης, επιτρέποντάς σας να απολαμβάνετε καθαρό αέρα και υπαίθριες δραστηριότητες.
Έξυπνες Λύσεις Αποθήκευσης
Τα σχέδια των σπιτιών μας περιλαμβάνουν δημιουργικές λύσεις αποθήκευσης για τη μεγιστοποίηση της χρήσης του χώρου. Χαρακτηριστικά όπως ενσωματωμένα ράφια, αποθηκευτικός χώρος κάτω από τη σκάλα ή επιτοίχια ντουλάπια βοηθούν στη διατήρηση της οργάνωσης και της ακαταστασίας του εσωτερικού.
Ενεργειακή Απόδοση
Δίνουμε προτεραιότητα στην ενεργειακή απόδοση στα σχέδια των μικρών σπιτιών μας. Συχνά ενσωματώνουν μόνωση, ενεργειακά αποδοτικά παράθυρα και συσκευές για τη μείωση της κατανάλωσης ενέργειας και του κόστους κοινής ωφέλειας.
Επιλογές Προσαρμογής
Ενώ τα σχέδια των σπιτιών μας σχεδιάζονται με γνώμονα την αποτελεσματική χρήση του χώρου, μπορούν να προσαρμοστούν ώστε να ταιριάζουν στις συγκεκριμένες ανάγκες και προτιμήσεις σας. Η ομάδα αρχιτεκτόνων και σχεδιαστών μας μπορεί να συνεργαστεί μαζί σας για να τροποποιήσει το σχέδιο, να προσαρμόσει τα μεγέθη των δωματίων ή να ενσωματώσει πρόσθετα χαρακτηριστικά για να δημιουργήσει το ιδανικό μικρό σπίτι σας.
Η συλλογή μας από κατοψη σπιτιου 75τμ προσφέρει μια ποικιλία στυλ και διατάξεων που ταιριάζουν σε διαφορετικά γούστα. Είτε ψάχνετε για ένα μοντέρνο σχέδιο, ένα παραδοσιακό εξοχικό σπίτι είτε ένα σύγχρονο σπίτι, έχουμε επιλογές που ταιριάζουν στο όραμά σας.
Εξερευνήστε την ιστοσελίδα μας για να δείτε τη συλλογή μας από κατοψη σπιτιου 75τμ και μη διστάσετε να επικοινωνήσετε με την ομάδα εξυπηρέτησης πελατών μας για οποιαδήποτε βοήθεια ή απορία έχετε. Είμαστε εδώ για να σας βοηθήσουμε να βρείτε το τέλειο σχέδιο μικρής κατοικίας που ανταποκρίνεται στις ανάγκες σας και σας βοηθά να πραγματοποιήσετε το όνειρό σας για άνετη και αποτελεσματική διαβίωση σε έναν συμπαγή χώρο.
Σύγχρονο Σχέδιο Σπιτιού 75τμ, 3 υπνοδωμάτια, 1 μπάνιο
Αυτή τη φορά παρουσιάζουμε σχέδιο σπιτιού σε οικόπεδο 75 τ.μ. με ποικιλία διατάξεων και αριθμών δωματίων. Ας ελπίσουμε ότι μπορεί να σας εμπνεύσει και να σας φανεί χρήσιμο. Η μπροστινή όψη αυτού του σχεδίου σπιτιού διαθέτει στέγαστρο αυτοκινήτου, μια αρκετά μεγάλη βεράντα που χρησιμοποιείται επίσης ως καθιστικό για συνομιλία με φίλους ή επισκέπτες. Μπροστά από τη βεράντα υπάρχει ένας μικρός κήπος για να ομορφύνει το σπίτι και να κάνει την ατμόσφαιρα πιο όμορφη και δροσερή.
Στο εσωτερικό υπάρχει ένα οικογενειακό δωμάτιο και μια τραπεζαρία χωρίς χωρίσματα για να φαίνεται ευρύχωρο, ενώ στην τραπεζαρία υπάρχει ένας κήπος ή ανοιχτός χώρος, ώστε το πίσω υπνοδωμάτιο να μπορεί να κυκλοφορεί αέρας και φυσικό φως.

Ο ανοιχτός χώρος προορίζεται επίσης για τον κήπο, ώστε η ατμόσφαιρα της τραπεζαρίας να είναι πιο φρέσκια και άνετη. Αυτό το σχέδιο κατοικίας έχει τρία υπνοδωμάτια ίδιου μεγέθους. Η κουζίνα και το μπάνιο βρίσκονται στο πίσω μέρος, ενώ υπάρχει επίσης ένας ανοιχτός χώρος, ώστε η κυκλοφορία του αέρα και του φωτός να είναι βέλτιστη.
Αυτό το σχέδιο κατοικίας έχει δύο υπνοδωμάτια. Το μπροστινό μέρος του σχεδίου διαθέτει ένα γκαράζ, μια βεράντα που είναι επίσης καθιστικό, ενώ απολαμβάνετε τον μικρό κήπο μπροστά της. Στο εσωτερικό υπάρχει ένα σαλόνι, δύο υπνοδωμάτια που βλέπουν στο σαλόνι. Στο πίσω μέρος υπάρχει μια τραπεζαρία και μια ανοιχτή κουζίνα και μπάνιο. Στο πίσω μέρος, στη δεξιά πλευρά, υπάρχει ένας ανοιχτός χώρος που μπορεί να χρησιμοποιηθεί ως κήπος ή ως χώρος για στέγνωμα ρούχων.

Αυτό το σχέδιο κατοικίας διαθέτει τρία υπνοδωμάτια, τραπεζαρία και σαλόνι σε ένα ενιαίο χώρο χωρίς χώρισμα. Η κουζίνα και το μπάνιο βρίσκονται στο πίσω μέρος. Το πίσω μέρος έχει έναν ανοιχτό χώρο αριστερά και δεξιά για κυκλοφορία αέρα και φυσικό φως. Το μπροστινό μέρος του σχεδίου κατοικίας διαθέτει ένα γκαράζ και μια βεράντα που χρησιμοποιούνται επίσης ως καθιστικό.

Αυτό το σχέδιο κατοικίας διαθέτει δύο υπνοδωμάτια, τραπεζαρία και σαλόνι σε ένα ενιαίο χώρο, ενώ το μπροστινό μέρος διαθέτει στέγαστρο αυτοκινήτου, βεράντα και μικρό κήπο. Η κουζίνα και το μπάνιο βρίσκονται στο πίσω μέρος. Ο ανοιχτός χώρος μπροστά και πίσω αναμένεται να παρέχει βέλτιστη κυκλοφορία αέρα και φυσικό φως.


Αυτό το σχέδιο σπιτιού είναι σχεδόν το ίδιο με το παραπάνω σχέδιο. Αυτό το σχέδιο σπιτιού έχει μια μικρότερη βεράντα και ένα καθιστικό τοποθετείται στο εσωτερικό. Ακολουθούν μερικά σχέδια σπιτιών σε οικόπεδο 75 τ.μ., ελπίζουμε να μπορούν να χρησιμοποιηθούν ως σκέψη και έμπνευση για εσάς. Ας ελπίσουμε ότι θα σας φανούν χρήσιμα.
Μικρά σχέδια κατοικίας 75τμ

Σχέδιο μικρού σπιτιού με ένα υπνοδωμάτιο και 1 μπάνιο. Το σαλόνι ανοίγει στην τραπεζαρία και την κουζίνα. Αυτό το σχέδιο κατοικίας μπορεί να κατασκευαστεί σε οικόπεδο μόλις 75τμ με πλάτος πρόσοψης 7,5 μέτρα. Τα σχέδια μικρών σπιτιών γενικά απευθύνονται σε οικογένειες Φιλιππίνων με μικρό προϋπολογισμό, καθώς η συνολική επιφάνεια είναι μόνο 36,6 τμ.
Η πραγματοποίηση του σπιτιού των ονείρων σας δεν έχει σημασία αν είναι μεγάλο ή μικρό, αρκεί να είναι ένα λειτουργικό σπίτι, αυτό μπορεί να είναι το σπίτι των ονείρων σας. Μη διστάσετε να χρησιμοποιήσετε αυτό το σχέδιο μικρού σπιτιού για το μελλοντικό σας σπίτι.
ΛΕΠΤΟΜΕΡΕΙΕΣ ΣΧΕΔΙΟΥ ΣΠΙΤΙΟΥ
- Σχέδια Μικρών Σπιτιών
- Υπνοδωμάτια: 1
- Μπάνια: 1
- Εμβαδόν Ορόφου: 37 τ.μ.
- Μέγεθος Οικοπέδου: 75 τ.μ.

Δεν υπάρχουν πολλά να περιγραφούν σε αυτό το σχέδιο κατοικίας λόγω της απλότητας και της μικρής του επιφάνειας. Έχοντας μια μικρή επιφάνεια οικοπέδου, αυτό το σχέδιο κατοικίας μπορεί να είναι μια καλή επιλογή ή ένα εναλλακτικό σχέδιο που εξυπηρετεί ή προορίζεται κυρίως για άτομα με χαμηλό εισόδημα. Το σημαντικό είναι οι ιδιοκτήτες οικοπέδων να έχουν ένα αξιοπρεπές μέρος για να ζήσουν και να πραγματοποιήσουν το όνειρό τους να αποκτήσουν το δικό τους σπίτι.